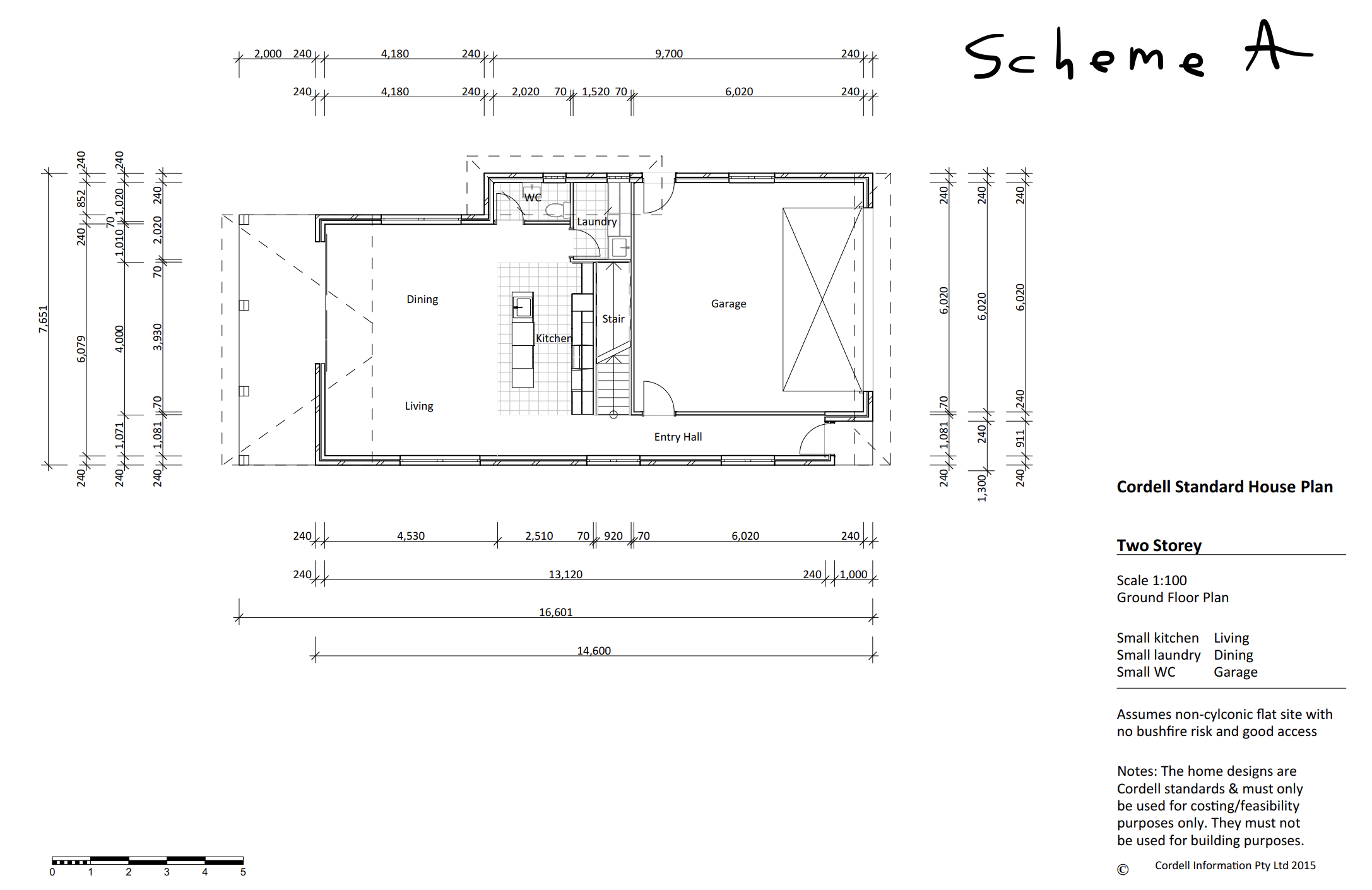
Question: * 2,000 240 * * 4,180 240 9,700 240 * * Scheme A 240 4,180 240 2,020 70 1 1,520 70 6,020 240 * *





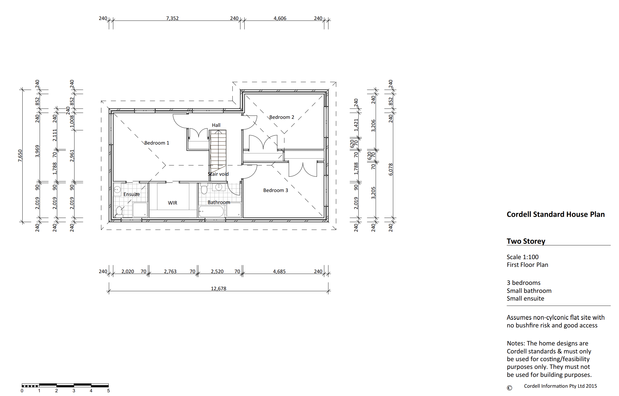
* 2,000 240 * * 4,180 240 9,700 240 * * Scheme A 240 4,180 240 2,020 70 1 1,520 70 6,020 240 * * 240 Hour 240 we 240* * 852 * * 240 *1,010 # 1,020 240 Laundry 70 2,020 240* - - 6,020 Dining 6,020 Garage 6,020 Stair 7,651 3,930 4,000 Kitchen 6,079 Living Entry Hall 240 911 240 240 1,081 70 240* * 1,081 470 1,300 240* 240* * 1,071 V 240 * * Cordell Standard House Plan 240 4,530 2,510 70 920 70 6,020 240 Two Storey 240 13,120 240 1,000 * Scale 1:100 Ground Floor Plan 16,601 Small kitchen Living 14,600 Small laundry Dining Small WC Garage Assumes non-cylconic flat site with no bushfire risk and good access Notes: The home designs are Cordell standards & must only be used for costing/feasibility purposes only. They must not be used for building purposes. 2 5 C Cordell Information Pty Ltd 2015 3240* 7,352 240 4,606 240 * * 240 852 240 240* * 852 * 240 *1,008 * 852 240 3,206 240 Bedroom 2 / Hall Bedroom 1 3,969 Z,650 2,961 70 50 240 2,019 90 1,788 70 / 30 1,421 1 240 240 2,019 90 1,788 70 2,111 240* 6,078 tair voip OLO Bedroom 3 3, 205 Ensuite WIR Bathroom 240* * 2,019 90 * 240* * 2,019 90 # Cordell Standard House Plan 240 240 Two Storey Scale 1:100 First Floor Plan 240 2,020 70 2,763 70 2,520 70 4,685 240 3 bedrooms 12,678 Small bathroom Small ensuite Assumes non-cylconic flat site with no bushfire risk and good access Notes: The home designs are Cordell standards & must only be used for costing/feasibility purposes only. They must not be used for building purposes. Cordell Information Pty Ltd 2015 2 3 C\f3. Indicative Cost Plan for Schemes (40%) In this section, you are required to estimate the cost of Scheme A by filling in all the details in the tables. This part will be marked together with Appendix uploaded. Note that if you fail to attach all the calculation steps in the assessment, you will lose all the marks of this section even you provide reasonably accurate cost estimate. Cost Plan for Scheme A GIFA = ? Element Estimate Total % Cost of Element Element method used Cost element unit unit rate (Comparative per quantity cost or GIFA Elemental cost Substructure Upper floors Roof Stairs External walls Windows External doors Internal walls and partitions Internal doors Wall finishes Sub-total Cost Sitework (5%) Preliminaries (2%) Total 100% Client: Project: Scheme A Price base date: New building work Siteworks AlterationsConstruction costs (at stated base date) Estimated inflation to probable tender date of Oct 2023 - ?% Construction costs at tender Estimated increased costs payable to contractors during construction period (2023-2025) = ?% Construction costs at completion Professional fees of all consultants including expenses - ?% Total cost
Step by Step Solution
There are 3 Steps involved in it
Get step-by-step solutions from verified subject matter experts
