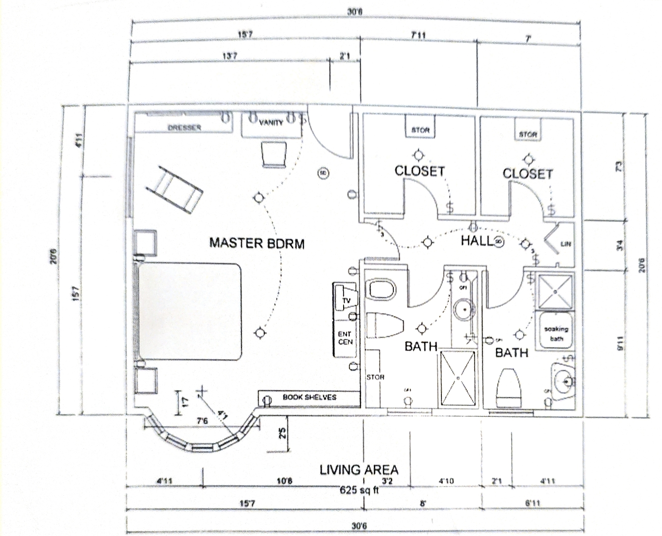
Question: 3 0 % Note Floor to ceiling height = 9 ' Floor thickness = 6 ' ' Exterior Door = 1 ( 7 ' 3
Note
Floor to ceiling height
Floor thickness
Exterior Door
Interior Doors
Bedroom WindowsX
Bathroom WindowsX
All exterior walls thick
Foundation depth
Footing depth
Foundation width multiply by width of the wall.
Questions
Estimate amount of dirt, in Cubic Yard CY needed to excavate the foundation of the building shown.
Estimate amount of concrete needed for the floor in CY
Estimate area of CMU wall needed for the foundation.
Estimate in CY amount of concrete needed for the footing of the house.
Calculate area of wall, in sq ft to paint from floor to ceiling.
How many gallon of paint needed to cover interior of the house. I gallon of paint will cover square feet of wall
Estimate amount of dry wall needed for the interior of the project.
Step by Step Solution
There are 3 Steps involved in it
1 Expert Approved Answer
Step: 1 Unlock
Question Has Been Solved by an Expert!
Get step-by-step solutions from verified subject matter experts
Step: 2 Unlock
Step: 3 Unlock
