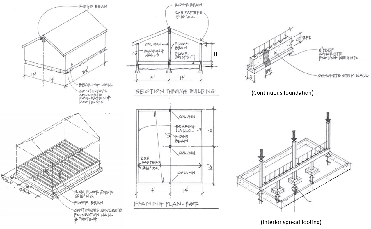
Question: Along rafter length: ( Continuous foundation ) ( Inter or spread toot ng ) Roof pitch: 9 : 1 2 Dead load ( roofing +
Along rafter length: Continuous foundation
Interor spread tootng
Roof pitch: :
Dead load roofing sheathing ceiling rafters psf
Live load snow psf
Ridge beam spans feet from column support to column support
Please round to the nearest onetenth ie
Determine the equivalent horizontally projected total load on the rafters Answer Question
lbft
Determine the load per foot on the bearing wall at the bottom including the wall weight wall dead load psf and wall height, H ft Answer Question
lbft
Determine the load per foot on the ridge beam Answer Question
lbft
Determine the load on the Interior column Answer Question
lb
Floor load conditions:
Floor dead load flooring subfloor joists psf
Live load occupancy psf
Determine the floor joist reactions into load per foot on the continuous foundation one side Answer Question
lbft
Determine the floor joist reactions into load per foot on the floor beam Answer Question
lbft
Foundation conditions:
Continuous foundation's stem wall is inch thick and ft tall
Footing base is inch thick
Concrete density pcf
Soil bearing capacity psf
Determine the minimum theoretical width of the continuous foundation Answer Question
ft Round to the nearest tenth!
Determine the minimum theoretical width of the interior spread footing for the critical center column Answer Question
ft Round to the nearest tenth!
Step by Step Solution
There are 3 Steps involved in it
1 Expert Approved Answer
Step: 1 Unlock
Question Has Been Solved by an Expert!
Get step-by-step solutions from verified subject matter experts
Step: 2 Unlock
Step: 3 Unlock
