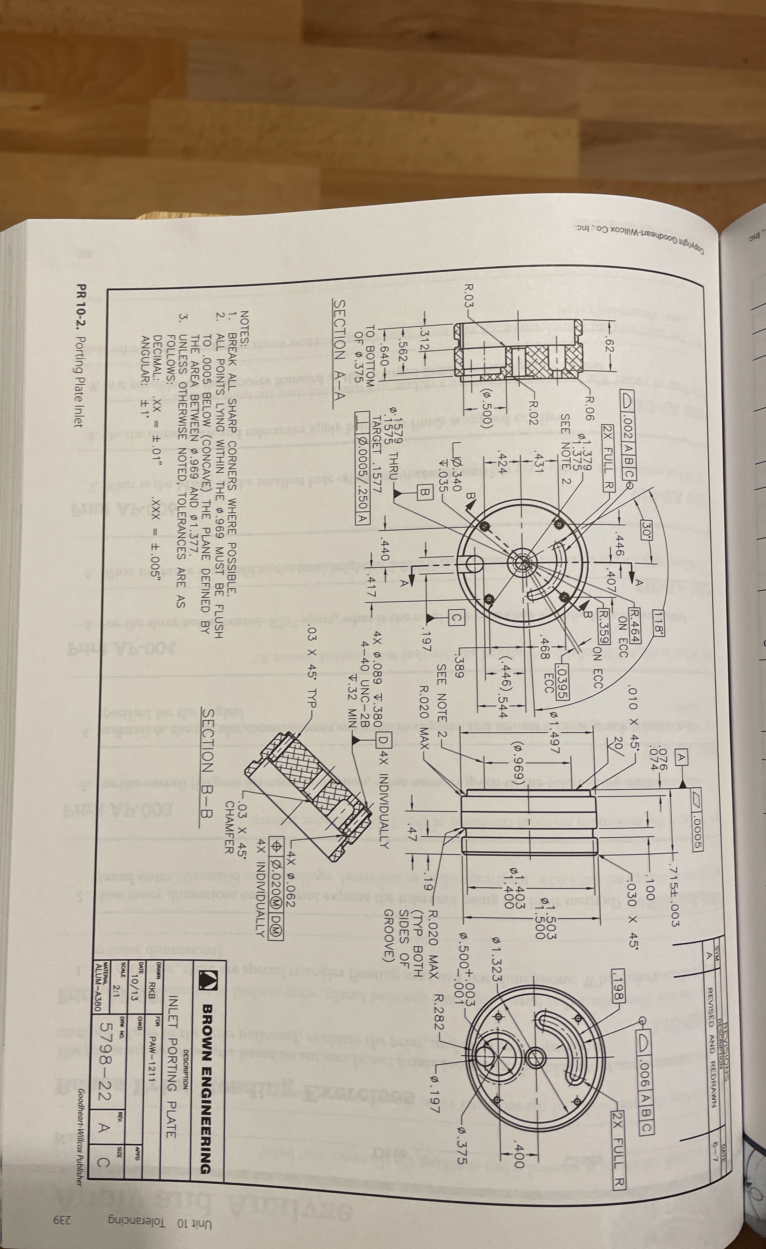
Question: Apply and Analyze q , Date q , Class 1 0 Industry Print Exercise 1 0 - 2 Refer to the print PR 1 0
Apply and Analyze
Date
Class
Industry Print Exercise
Refer to the print PR and answer the questions below.
The basic depth of this part is What is the tolerance on that dimension?
In the auxiliary section view, there is a chamfer note. What is the tolerance on the chamfer?
The central, smallest hole has a target size of What is the tolerance on that hole?
What is the MMC of a mating part for a clearance fit within this same hole featuring an allowancecof
What is the maximum material condition of the largest body diameter of this part?
What is the angular tolerance for angles, unless otherwise specified?
What is the tolerance of the diameter dimension that has a tolerance expressed in a bilateral expression, but not equilateral?
There are four symbols on this print that have letters enclosed in squares, each with a stem leadingto a filled triangle. What do these symbols represent?
How many notes indicate a unilateral tolerance for rounding a corner up to a certain amount?
In the view that is furthest to the right, a diameter dimension is given. What is the least material condition of that feature?
Based on tolerances given, calculate the deepest value for the counterbore.
eview questions based on previous units:
Is Section BB shown in alignment with other views, or is it shown as a removed view?
Use charts in Appendix D of this text to identify the major diameter of the four threaded holes.
How many cutting planes are indicated?
Are there any reference dimensions on this print?
NOTES:
BREAK ALL SHARP CORNERS WHERE POSSIBLE,
ALL POINTS LYING WITHIN THE MUST BE FLUSH TO BELOW CONCAVE THE PLANE DEFINED BY THE AREA BETWEEN AND
SECTION BB
UNLESS OTHERWISE NOTED, TOLERANCES ARE AS FOLLOWS
DECIMAL:
ANGULAR
SECTION BB
BROWN ENGINEERING
tableDiscoriptoNano,,Neposouke :AC
GoodheartWillcox Publisher
PR Porting Plate Inlet
Step by Step Solution
There are 3 Steps involved in it
1 Expert Approved Answer
Step: 1 Unlock
Question Has Been Solved by an Expert!
Get step-by-step solutions from verified subject matter experts
Step: 2 Unlock
Step: 3 Unlock
