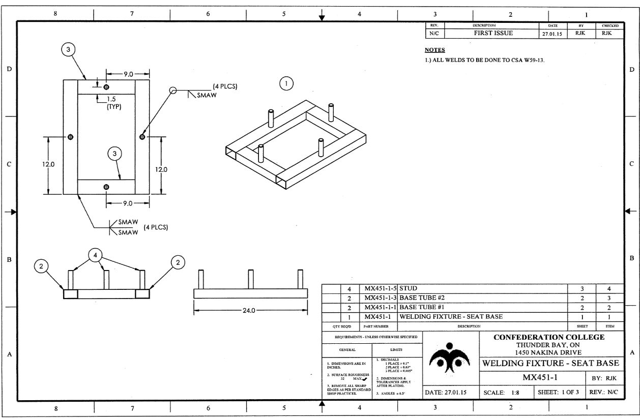
Question: B 8 7 5 8 7 6 2 12.0 5 + 24.0 3 2 REV. DESCRIPTION N/C FIRST ISSUE DATE 27.01.15 BY RJK CHECKED




B 8 7 5 8 7 6 2 12.0 5 + 24.0 3 2 REV. DESCRIPTION N/C FIRST ISSUE DATE 27.01.15 BY RJK CHECKED RJK REQUIREMENTS. UNLESS OTHERWISE SPECIFIED GENERAL LIMITS 1. DECIMALS 1. DIMENSIONS ARE IN INCHES. I PLACE+0.1* 2 2 MX451-1-2 MX451-1-1 BASE TUBE #2 BASE TUBE #1 2" x 3"x 0.083 MILD STEEL A513 2" x 3"x 0.083 MILD STEEL A513 QTY REQD PART NUMBER DESCRIPTION MATERIAL ASTM A513 2 ASTM A513 1 MAT'L SPEC CONFEDERATION COLLEGE THUNDER BAY, ON 1450 NAKINA DRIVE ITEM WELDING FIXTURE - SEAT BASE 2 PLACE 0.0* 3 PLACE +0.005" 2. SURFACE ROUGHNESS MAX. 2. DIMENSIONS & MX451-1 BY: RJK 3. REMOVE ALL SHARP EDGES AS PER STANDARD SHOP PRACTICES. TOLERANCES APPLY AFTER PLATING 3. ANGLES 0.5 DATE: 27.01.15 SCALE: 1:2 SHEET: 2 OF 3 REV.: N/C 4 3 2 A B C D R.1 6 5 4.0 4 MX451-1-5 QTY REQD PART NUMBER REY. N/C DESCRIPTION FIRST ISSUE DATE 27.01.15 BY RJK CHECKED RJK STUD 1" MILD STEEL 1018 ASTM-A 108 DESCRIPTION MATERIAL MATL SPEC REQUIREMENTS- UNLESS OTHERWISE SPECIFIED GENERAL LIMITS 1. DECIBIALS 1. DIMENSIONS ARE IN INCHES 2. SURFACE ROUGHNESS 32 MAX 1 PLACE +0.1" PLACE:6.03 PLACE 4* 2 DIMENSIONS & 3. REMOVE ALL SHARP EDGES AS PER STANDARD SHOP PRACTICES. 4 CONFEDERATION COLLEGE THUNDER BAY, ON 1450 NAKINA DRIVE WELDING FIXTURE - SEAT BASE MX451-1 TOLERANCES APPLY AFTER PLAYING. 1. ANGLES = 0.5' DATE: 27.01.15 SCALE: 2:1 3 2 BY: RJK SHEET: 3 OF 3 REV.: N/C 1 D B 12.0 8 7 6 5 4 3 2 1 REV. N/C DESCRIPTION DATE BY CRECKED FIRST ISSUE 27.01.15 RJK RJK 1.5 (TYP) 9.0 -9.0 12.0 SMAW SMAW (4 PLCS) (4 PLCS) SMAW 8 7 6 24.0 5 NOTES 1.) ALL WELDS TO BE DONE TO CSA W59-13. 4 MX451-1-5 STUD 2 MX451-1-3 BASE TUBE #2 2 MX451-1-1 BASE TUBE #1 1 QTY REQ'D MX451-1 WELDING FIXTURE-SEAT BASE PART NUMBER DESCRIPTION REQUIREMENTS-UNLESS OTHERWISE SPECIFIED GENERAL LIMITS 1. DECIMALS 3 4 2 3 2 2 1 SHEET ITEM CONFEDERATION COLLEGE THUNDER BAY, ON 1450 NAKINA DRIVE 1. DIMENSIONS ARE IN INCHES SURFACE ROUGHNESS 3, REMOVE ALL SHARP EDGES AS PER STANDARD SHOP PRACTICES. 1 PLACE+0.1* 2 PLACE = 0.43" PLACE+0.05" 2. DIMENSIONS & WELDING FIXTURE - SEAT BASE MX451-1 BY: RJK TOLERANCES APPLY AFTER PLATING 3. ANGLES = 0.5" DATE: 27.01.15 SCALE: 1:8 SHEET: 1 OF 3 REV.: N/C 4 3 2 1 D B A Cold Finish Mild Steel Round 1018 View our "Guide to Mild Steel" for available grades, shapes and addtional information. Mill Test Reports are available on this item and can be selected during the checkout process. Material Meets These Standard(s): ASTM-A 108 | D Dimensions Weight/Lineal Foot: 2.66 pounds Dimension Name Value Diameter 1" Available Sizes Create a Custom Size Technical Information 10% off orders over $100 (discount reflected in shopping cart) Random Length (10"-12") - $7.03 One Ft. (12") Length - $7.83 Two Ft. (24") Length - $15.03 Three Ft. (36") Length - $21.13 Four Ft. (48") Length - $25.04 Five Ft. (60") Length - $29.74 Six Ft. (72") Length - $34.74 Seven Ft. (84") Length - $39.44 Eight Ft. (96" Length) - $43.82 A | < B B Dimensions Weight/Lineal Foot: 2.7347 pounds Dimension Name Value Height 2" Width 3" Wall 0.083" Internal Height 1.834 Internal Width 2.834 Available Sizes Create a Custom Size Technical Information 10% off orders over $100 (discount reflected in shopping cart) Random Length (10"-12") - $9.54 One Ft. (12") Length - $10.59 Two Ft. (24") Length - $20.34 Three Ft. (36") Length - $28.60 Four Ft. (48") Length - $33.91 O Five Ft. (60") Length - $40.26 Six Ft. (72") Length - $47.04 O Seven Ft. (84") Length - $53.40 O Eight Ft. (96" Length) - $59.33 Selected Product: Hot Rolled Mild Steel Rectangle Tube A513 Enter a Quantity: 1 Add to Cart You will be shown a detailed product list, costs and shipping charges before you check out. Can't find what you're looking for? Fill out our materials form here. We'll follow-up within the next business day. Company Information About Online Metals.com Contact Us Email: sales@onlinemetals.com
Step by Step Solution
There are 3 Steps involved in it
Get step-by-step solutions from verified subject matter experts
