Question: Complete the table by determining the ff. a) Wire Diameter for each circuit b) Conduit diameter for each circuit c) Fuse capacity for each circuit



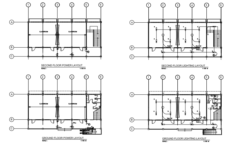
Complete the table by determining the ff. a) Wire Diameter for each circuit b) Conduit diameter for each circuit c) Fuse capacity for each circuit d) Diameter of wire and conduit for service entrance e) Fuse capacity (AT) on main circuit breaker PANELBOARD: LP CKT. NO DESCRIPTION LOAD 1 CONV. OUTLET 2 MAIN : CIRCUIT BREAKER WIRE & CONDUIT SIZE VOLT POLE AF 230 2 230 2 230 2 230 2 230 2 230 2 CONV. OUTLET - LIGHT OUTLET EXHAUST FAN OUTLET LIGHT OUTLET 3 4 5 UOHT OUTLET E 1500 TOTAL Notes: Convenience Outlet - 180W per outlet Lighting outlet - 100W per receptacle Exhaust Fan - 180 W Maintain Ampere Frame (AF) at 50A ALL WIRES SHALL BE COPPER AND THERMOPLASTIC INSULATED TYPE "THW" UNLESS OTHERWISE INDICATED IN THE PLAN. THE MINIMUM SIZE OF WIRE FOR POWER AND LIGHTING CIRCUIT HOMERUN SHALL BE 3.5mm? AND INSULATED FOR 600 VOLTS. SMALLEST RACEWAY SHALL BE 15mm TRADE/NOMINAL SIZE. GENERAL NOTES LEGEND SYMBOL Sisa Sab Sede 1. ALL ELECTRICAL WORKS SHALL COMPLY IN ACCORDANCE WITH THESE PLANS AND SPECIFICATIONS. THE APPLICABLE PROVISIONS OF THE LATEST EDITION OF THE PHILIPPINE ELECTRICAL CODE (PEC). THE RULES AND REGULATION OF THE LOCAL ENFORCING AUTHORITY AND THE REQUIREMENTS OF THE LOCAL POWER COMPANY. THE ELECTRICAL WORKS SHALL BE UNDER IMMEDIATE SUPERVISION OF A DULY REGISTERED ELECTRICAL ENGINEER. 2. THE ELECTRICAL SERVICE POWER IS 1-PHASE, 2-WIRE, 230 V AC, 60 Hz. 3. WRING METHOD SHALL BE AS FOLLOWS: G. FEEDERS AND RISERS INTERMEDIATE METALLIC CONDUIT b. LIGHTING, POWER RECEPTACLE - POLYVINYL CHLORIDE CONDUIT BRANCH CKT., & AUXILIARY SCH. 40 4. ALL WRES SHALL BE COPPER AND THERMOPLASTIC INSULATED TYPE THW" UNLESS OTHERWISE INDICATED IN THE PLAN. THE MINIMUM SIZE OF WIRE FOR POWER AND LIGHTING CIRCUIT HOMERUN SHALL BE 3.5mm? AND INSULATED FOR 600 VOLTS. SMALLEST RACEWAY SHALL BE 15mmD TRADE/NOMINAL SIZE. 5. ALL OUTLET BOXES SHALL BE GALVANIZED GAUGE NO. 16 DEEP TYPE WITH FACTORY KNOCKOUTS. DESCRIPTION CEILING LIGHT OUTLET 2 x 40 WATTS FLUORESCENT LAMP CEILING FAN OUTLET ONE GANG DEVICE SWITCH TWO GANG DEVICE SWITCH THREE GANG DEVICE SWTCH THREE WAY DEVICE SWITCH FAN CONTROL SWITCH EXHAUST FAN SWITCH RACEWAY CONDUIT CONCEALED IN CEILING RACEWAY CONDUIT CONCEALED UNDER FLOOR SW SF SEF 6. ALL MATERIALS TO BE USED SHALL BE BRAND NEW AND APPROVED TYPE FOR THE PARTICULAR LOCATION AND PURPOSE OF USAGE. 7. GROUNDING SYSTEM SHALL BE PROVIDED TO ALL LIGHTING AND POWER CIRCUIT AS PER PHILIPPINE ELECTRICAL CODE REQUIREMENT. PO BA?. 1 LILIT PANELBOARD CKT. BREAKER, RATING AS INDICATED DUPLEX CONVENIENCE OUTLET, GROUNDING TYPE 10 AMPS, 250 VOLT WITH MODERN PLATE COVER EXHAUST FAN OUTLET, SINGLE, GROUNDING TYPE 10 AMPS, 250 VOLT WTH MODERN PLATE COVER HOMERUN DIRECT TO PANELBOARD PUSH BUTTON ENCLOSED AIR CIRCUIT BREAKER FIRE ALARM CONTROL PANEL FIRE ALARM STATION OUTLET VIBRATING BELL OUTLET FIRE ALARM BELL - SERVICE METER SERVICE ENTRANCE 8. MOUNTING HEIGHT OF WIRING DEVICES SHALL BE AS FOLLOWS: a. LIGHT SWTCH 1.20 M ABOVE FINISH FLOOR b. CONVENIENCE OUTLET 0.30 M ABOVE FINISH FLOOR. e. PANELBOARD 1.50 M ABOVE FINISH FLOOR d. FIRE ALARM STATION OUTLET - 1.50 M. ABOVE FINISH FLOOR e. PUSH BUTTON OUTLET 1.20 M ABOVE FINISH FLOOR PANEL LP f. FIRE ALARM & VIBRATING BELL - 0.30 M BELOW CEILING LINE o O GROOM GROOM B Selg SECOND FLOOR POWER LAYOUT SCALE SECOND FLOOR LIGHTING LAYOUT SCALE 100 M 100M QUADROOM GAROOM B GROUND FLOOR POWER LAYOUT GROUND FLOOR LIGHTING LAYOUT 100 M 1.100 SCALE Complete the table by determining the ff. a) Wire Diameter for each circuit b) Conduit diameter for each circuit c) Fuse capacity for each circuit d) Diameter of wire and conduit for service entrance e) Fuse capacity (AT) on main circuit breaker PANELBOARD: LP CKT. NO DESCRIPTION LOAD 1 CONV. OUTLET 2 MAIN : CIRCUIT BREAKER WIRE & CONDUIT SIZE VOLT POLE AF 230 2 230 2 230 2 230 2 230 2 230 2 CONV. OUTLET - LIGHT OUTLET EXHAUST FAN OUTLET LIGHT OUTLET 3 4 5 UOHT OUTLET E 1500 TOTAL Notes: Convenience Outlet - 180W per outlet Lighting outlet - 100W per receptacle Exhaust Fan - 180 W Maintain Ampere Frame (AF) at 50A ALL WIRES SHALL BE COPPER AND THERMOPLASTIC INSULATED TYPE "THW" UNLESS OTHERWISE INDICATED IN THE PLAN. THE MINIMUM SIZE OF WIRE FOR POWER AND LIGHTING CIRCUIT HOMERUN SHALL BE 3.5mm? AND INSULATED FOR 600 VOLTS. SMALLEST RACEWAY SHALL BE 15mm TRADE/NOMINAL SIZE. GENERAL NOTES LEGEND SYMBOL Sisa Sab Sede 1. ALL ELECTRICAL WORKS SHALL COMPLY IN ACCORDANCE WITH THESE PLANS AND SPECIFICATIONS. THE APPLICABLE PROVISIONS OF THE LATEST EDITION OF THE PHILIPPINE ELECTRICAL CODE (PEC). THE RULES AND REGULATION OF THE LOCAL ENFORCING AUTHORITY AND THE REQUIREMENTS OF THE LOCAL POWER COMPANY. THE ELECTRICAL WORKS SHALL BE UNDER IMMEDIATE SUPERVISION OF A DULY REGISTERED ELECTRICAL ENGINEER. 2. THE ELECTRICAL SERVICE POWER IS 1-PHASE, 2-WIRE, 230 V AC, 60 Hz. 3. WRING METHOD SHALL BE AS FOLLOWS: G. FEEDERS AND RISERS INTERMEDIATE METALLIC CONDUIT b. LIGHTING, POWER RECEPTACLE - POLYVINYL CHLORIDE CONDUIT BRANCH CKT., & AUXILIARY SCH. 40 4. ALL WRES SHALL BE COPPER AND THERMOPLASTIC INSULATED TYPE THW" UNLESS OTHERWISE INDICATED IN THE PLAN. THE MINIMUM SIZE OF WIRE FOR POWER AND LIGHTING CIRCUIT HOMERUN SHALL BE 3.5mm? AND INSULATED FOR 600 VOLTS. SMALLEST RACEWAY SHALL BE 15mmD TRADE/NOMINAL SIZE. 5. ALL OUTLET BOXES SHALL BE GALVANIZED GAUGE NO. 16 DEEP TYPE WITH FACTORY KNOCKOUTS. DESCRIPTION CEILING LIGHT OUTLET 2 x 40 WATTS FLUORESCENT LAMP CEILING FAN OUTLET ONE GANG DEVICE SWITCH TWO GANG DEVICE SWITCH THREE GANG DEVICE SWTCH THREE WAY DEVICE SWITCH FAN CONTROL SWITCH EXHAUST FAN SWITCH RACEWAY CONDUIT CONCEALED IN CEILING RACEWAY CONDUIT CONCEALED UNDER FLOOR SW SF SEF 6. ALL MATERIALS TO BE USED SHALL BE BRAND NEW AND APPROVED TYPE FOR THE PARTICULAR LOCATION AND PURPOSE OF USAGE. 7. GROUNDING SYSTEM SHALL BE PROVIDED TO ALL LIGHTING AND POWER CIRCUIT AS PER PHILIPPINE ELECTRICAL CODE REQUIREMENT. PO BA?. 1 LILIT PANELBOARD CKT. BREAKER, RATING AS INDICATED DUPLEX CONVENIENCE OUTLET, GROUNDING TYPE 10 AMPS, 250 VOLT WITH MODERN PLATE COVER EXHAUST FAN OUTLET, SINGLE, GROUNDING TYPE 10 AMPS, 250 VOLT WTH MODERN PLATE COVER HOMERUN DIRECT TO PANELBOARD PUSH BUTTON ENCLOSED AIR CIRCUIT BREAKER FIRE ALARM CONTROL PANEL FIRE ALARM STATION OUTLET VIBRATING BELL OUTLET FIRE ALARM BELL - SERVICE METER SERVICE ENTRANCE 8. MOUNTING HEIGHT OF WIRING DEVICES SHALL BE AS FOLLOWS: a. LIGHT SWTCH 1.20 M ABOVE FINISH FLOOR b. CONVENIENCE OUTLET 0.30 M ABOVE FINISH FLOOR. e. PANELBOARD 1.50 M ABOVE FINISH FLOOR d. FIRE ALARM STATION OUTLET - 1.50 M. ABOVE FINISH FLOOR e. PUSH BUTTON OUTLET 1.20 M ABOVE FINISH FLOOR PANEL LP f. FIRE ALARM & VIBRATING BELL - 0.30 M BELOW CEILING LINE o O GROOM GROOM B Selg SECOND FLOOR POWER LAYOUT SCALE SECOND FLOOR LIGHTING LAYOUT SCALE 100 M 100M QUADROOM GAROOM B GROUND FLOOR POWER LAYOUT GROUND FLOOR LIGHTING LAYOUT 100 M 1.100 SCALE
Step by Step Solution
There are 3 Steps involved in it
Get step-by-step solutions from verified subject matter experts
