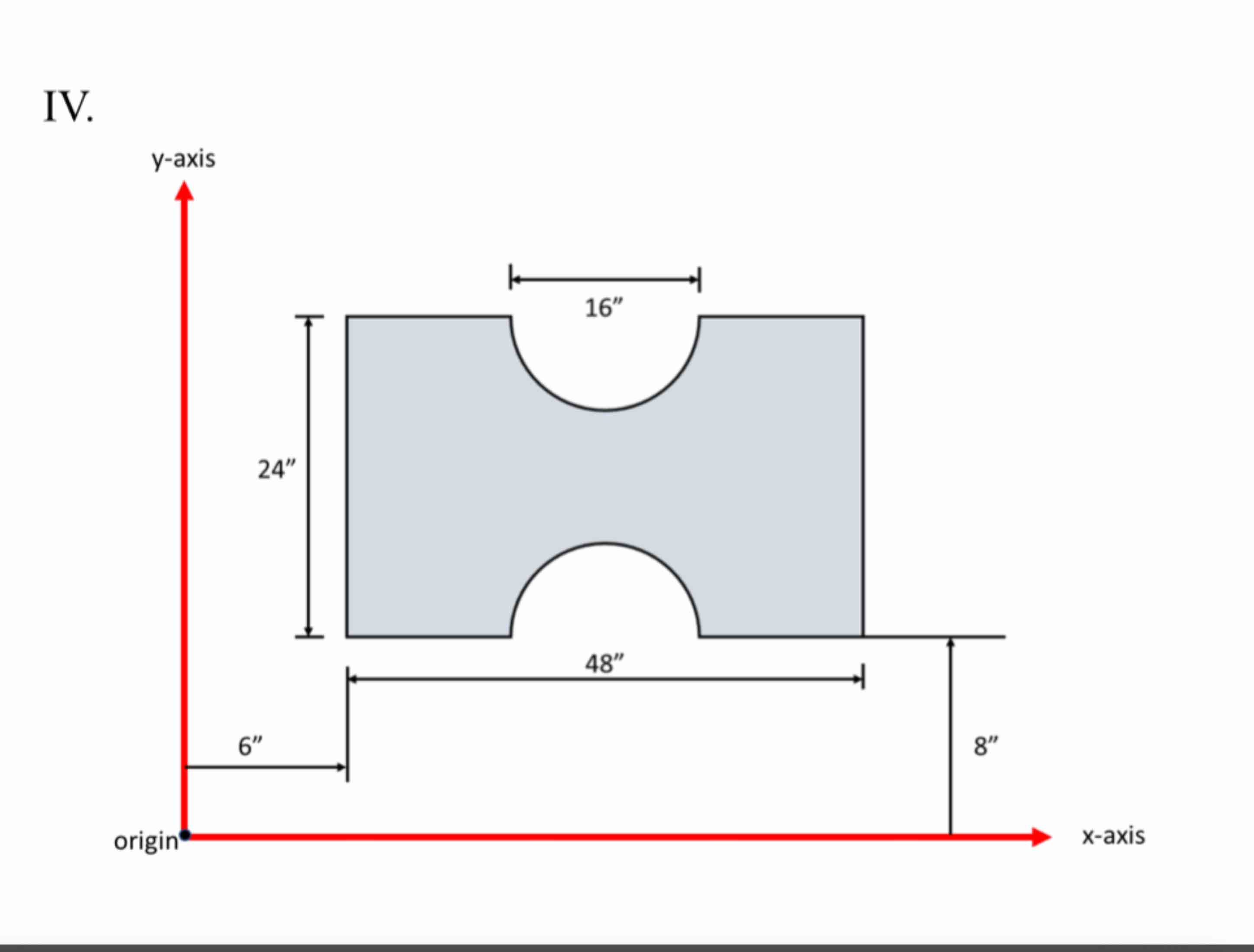
Question: Determine the following for the shape below X - centroidal axis Y - centroidal axis Moment of Inertia about the x - axis Moment of
Determine the following for the shape below
Xcentroidal axis
Ycentroidal axis
Moment of Inertia about the xaxis
Moment of inertia about the yaxis
Radius of Gyration about the xaxis
Radius of Gyration about the yaxis IV
Step by Step Solution
There are 3 Steps involved in it
1 Expert Approved Answer
Step: 1 Unlock
Question Has Been Solved by an Expert!
Get step-by-step solutions from verified subject matter experts
Step: 2 Unlock
Step: 3 Unlock
