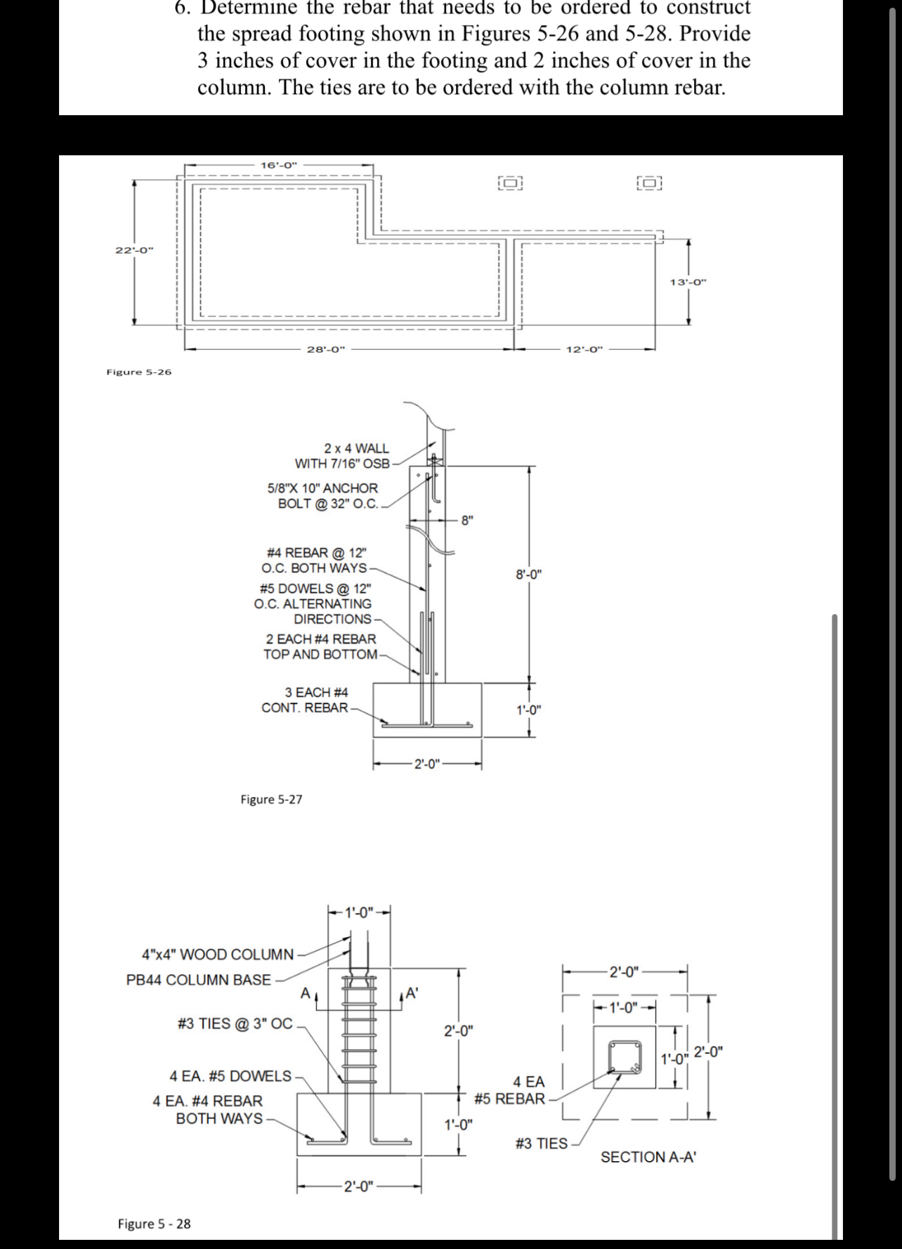
Question: Determine the rebar that needs to be ordered to construct the spread footing shown in Figures 5 - 2 6 and 5 - 2 8
Determine the rebar that needs to be ordered to construct
the spread footing shown in Figures and Provide
inches of cover in the footing and inches of cover in the
column. The ties are to be ordered with the column rebar.
rigure
Step by Step Solution
There are 3 Steps involved in it
1 Expert Approved Answer
Step: 1 Unlock
Question Has Been Solved by an Expert!
Get step-by-step solutions from verified subject matter experts
Step: 2 Unlock
Step: 3 Unlock
