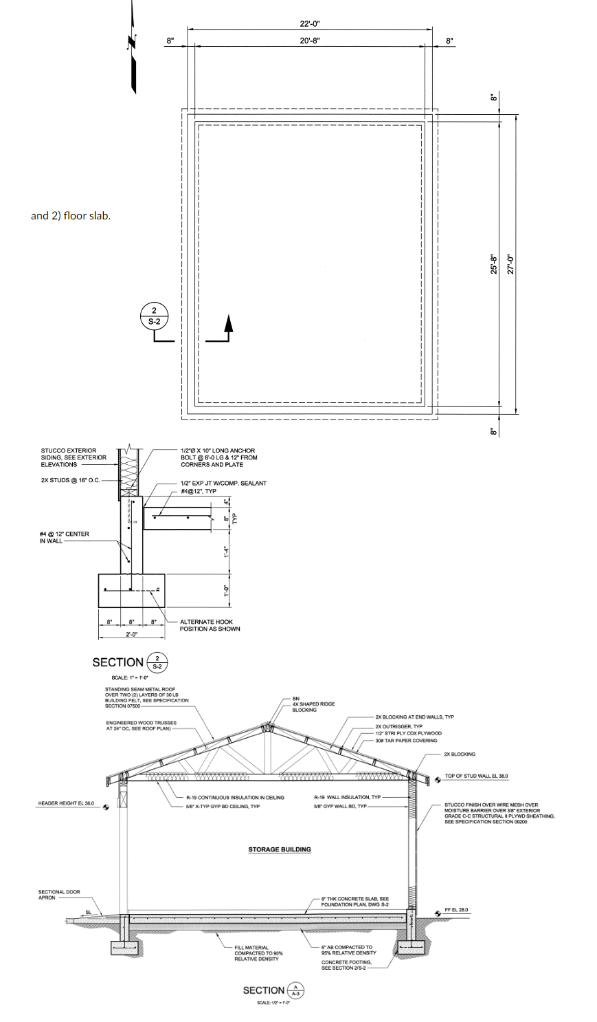
Civil Engineering Questions and Answers February 09, 2020

Expert-verified solutions to help you succeed

Showing 800 - 900 of 1500
  • 9 / 15