Question: I need today ASAP! please Ive attached the question and the data Wind Design Project Use the general layout of the building you used in
I need today ASAP! please
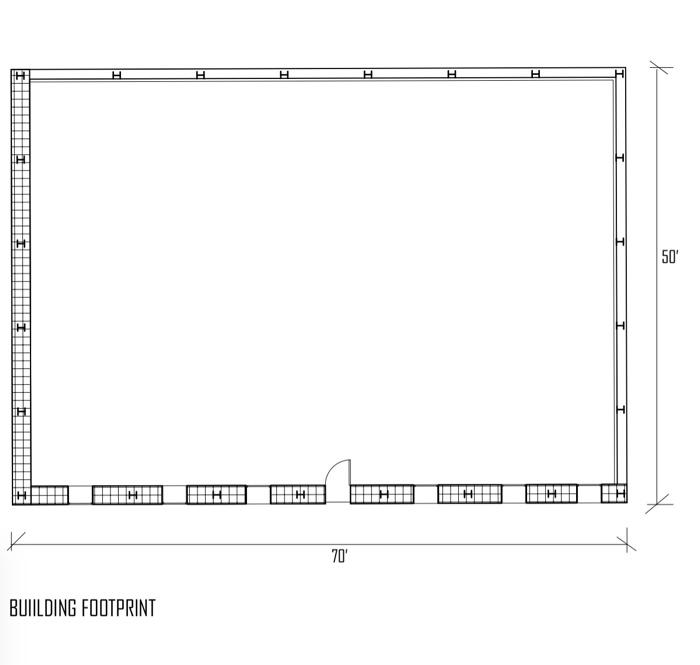
Wind Design Project Use the general layout of the building you used in Project 1 of this course to complete this wind design project. Provide the form of the building footprint and show all 4 elevation views. Then do the following: 1- Use the wind design procedure called "the directional procedure" as outlined in Chapter 27 of the ASCE 7-16 standard to determine the wind loads on all four exterior walls and roof. Draw the related wind distribution diagrams illustrating the results of the calculations. 2- Calculate the lateral uniformly distributed wind load on both the floor and roof diaphragms. Provide the related diagrams. o oo ooo - EAST ELEVATION LE WEST ELEVATION - 10 NORTH ELEVATION - SOUTH ELEVATION AXONOMETRIC H H H H 50 X 70 BUILDING FOOTPRINT Period of structure Period of the structure Ta is to be used Ct for steel moment resisting frame .028 and x is.8. Ta = Ct (hn) Ta + Ct (hn) Ta = .028 ( 40 ) Ta=.5355 sec Our building is located in San Francisco, California. Ss = 200 / 100 = 2 1 = 75 / 100 = .75 Seismic response coefficient Cs From the table risk value (11) ->le = 1 Cs = SDs/(R/le) Cs = .45/(8/1) Cs = .05625 Also, T TL It shouldn't be less than Cs = 044 SDS le=,044 145 - 0198 >= 1 Moreover the structure located where St =>.69, Csshouldn't be less than Cs - 55/(R/le) C -0562 Seismic base shear V=CW V = .0562 (2707 kips ) V = 152.1334 kips The SD1 value of 28 g is based on S1 value of 218. If $1 >= .69 then G = ( 5lest)/R Vertical distribution on seismic forces Fx = CV Cox= (Wx* x*)/(ET-. Whi) By using interpolation calculate the value of k Ki = 1 5 .53 K2=2 25 K = 1+((2-1)/(2.5-5))*( 53-5) K = 1.015 V = 152.1334 kips Level (x) (ft) h(ft) Wx FCVV (kips) Wihice (Wxh)/ Wishi) 2536.2 .015 4 40 42.27 20.40 2.28 3 30 31.57 2500+40 80187.8 .494 75.15 2 20 20.91 2500+40 531114 327 49.64 1 10 10.35 2500+40 26289 .162 24.64 Wihit = 162124.4 Fx = Cvxv = 152.13 kips 2.28 kips 10' 75.15 kips 10' 49.74 kips 10' 24.64 kips 10 Given information: Dead load (DL) = 40 psf live load (LL) = 100 psf Live load floor / roof = 20 psf Weight of permenant equipment in the building = 2500 lbs Partition in w-factor = 17 psf Snow load = 30 psf Total load = 2707 psf Assuming seismic design category D steel moment resisting frame SDs = .45 g R = 8 hn = 40 ft SD1 = 28 g w = 2707 kips le = 1 TL = 8 sec Wind Design Project Use the general layout of the building you used in Project 1 of this course to complete this wind design project. Provide the form of the building footprint and show all 4 elevation views. Then do the following: 1- Use the wind design procedure called "the directional procedure" as outlined in Chapter 27 of the ASCE 7-16 standard to determine the wind loads on all four exterior walls and roof. Draw the related wind distribution diagrams illustrating the results of the calculations. 2- Calculate the lateral uniformly distributed wind load on both the floor and roof diaphragms. Provide the related diagrams. o oo ooo - EAST ELEVATION LE WEST ELEVATION - 10 NORTH ELEVATION - SOUTH ELEVATION AXONOMETRIC H H H H 50 X 70 BUILDING FOOTPRINT Period of structure Period of the structure Ta is to be used Ct for steel moment resisting frame .028 and x is.8. Ta = Ct (hn) Ta + Ct (hn) Ta = .028 ( 40 ) Ta=.5355 sec Our building is located in San Francisco, California. Ss = 200 / 100 = 2 1 = 75 / 100 = .75 Seismic response coefficient Cs From the table risk value (11) ->le = 1 Cs = SDs/(R/le) Cs = .45/(8/1) Cs = .05625 Also, T TL It shouldn't be less than Cs = 044 SDS le=,044 145 - 0198 >= 1 Moreover the structure located where St =>.69, Csshouldn't be less than Cs - 55/(R/le) C -0562 Seismic base shear V=CW V = .0562 (2707 kips ) V = 152.1334 kips The SD1 value of 28 g is based on S1 value of 218. If $1 >= .69 then G = ( 5lest)/R Vertical distribution on seismic forces Fx = CV Cox= (Wx* x*)/(ET-. Whi) By using interpolation calculate the value of k Ki = 1 5 .53 K2=2 25 K = 1+((2-1)/(2.5-5))*( 53-5) K = 1.015 V = 152.1334 kips Level (x) (ft) h(ft) Wx FCVV (kips) Wihice (Wxh)/ Wishi) 2536.2 .015 4 40 42.27 20.40 2.28 3 30 31.57 2500+40 80187.8 .494 75.15 2 20 20.91 2500+40 531114 327 49.64 1 10 10.35 2500+40 26289 .162 24.64 Wihit = 162124.4 Fx = Cvxv = 152.13 kips 2.28 kips 10' 75.15 kips 10' 49.74 kips 10' 24.64 kips 10 Given information: Dead load (DL) = 40 psf live load (LL) = 100 psf Live load floor / roof = 20 psf Weight of permenant equipment in the building = 2500 lbs Partition in w-factor = 17 psf Snow load = 30 psf Total load = 2707 psf Assuming seismic design category D steel moment resisting frame SDs = .45 g R = 8 hn = 40 ft SD1 = 28 g w = 2707 kips le = 1 TL = 8 sec
Ive attached the question and the data






Step by Step Solution
There are 3 Steps involved in it
1 Expert Approved Answer
Step: 1 Unlock
Question Has Been Solved by an Expert!
Get step-by-step solutions from verified subject matter experts
Step: 2 Unlock
Step: 3 Unlock
