Question: NOTE: This assignment requires you to be creative and put together a plan for a catering event. If you do not have the capabilities to

NOTE: This assignment requires you to be creative and put together a plan for a catering event.

If you do not have the capabilities to draw the floor plan in by computer (FYI I used powerpoint for the template and copied into Word), you can draw by hand and scan / attach a photograph of your plan. All files must be submitted to the Brightspace dropbox, preferably in one file with your name on it.

The Situation:

You are the catering manager at a hotel. A client has come in with the specific details and asked you to produce a catering plan for his approval. Your will hand in:

Part A
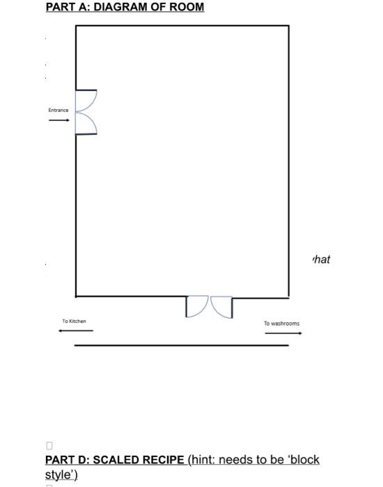
o Diagram of room with all requested items indicated - see file attachment for outline of reception room
Part B
o Diagram of buffet and other tables(s) with food, dishes, serving utensils, etc.
Part C
o A general plan of the details you would attend to leading up to the day of the reception
o A general service/work plan for the evening of the reception - starting with setup, completion times, service times. (not for individual workers)
Part D
o Block format recipe for stuffed mushroom caps-scaled up to 200 portions - refer to course notes on recipe development
Part E
o Not mandatory include anything else here you think would assist you demonstrate to the client how his wishes will be met

Feel free to be creative in the presentation of the materials - but this is the minimum to be handed in.

The Client:

Mr. Johnson a member of the alumni association at the local college wants an elegant evening reception from 7 pm - 9:30 pm on June 30, 2021

The Guests:

College alumni, graduating classes 1971 - 1991
200 guests are expected to attend

Additional Needs of the Client:

A registration desk to hand out name tags and program
2 coat racks
Microphone and podium
2 standing floral arrangements and 1 table centrepiece
4 garbage cans
Some chairs for elderly guests
Large welcome banner
Green cocktail napkins with the college crest embossed on them.

The Menu:

Beverages

Wine spritzers
Fruit juice spritzers

Hot hors d'oeuvres

*Mr Johnsons favorite stuffed mushrooms he provided you with this recipe (which you will have to scale to 200 in part D).
Filo triangles with cheese
Bacon wrapped scallops
Mini vegetarian quiches

Cold hors d'oeuvres

Vegetable tray with dip
Hummus and pita

Dessert

Decorated cake
Assorted squares
Fruit tray
Coffee /Tea

Room Diagram:

Determine logical places for (and include in Part A diagram):

Microphone / podium
Welcome banner
Flower arrangements - makes sure they don't get in the way of traffic flow
Chairs placed along walls (~20 chairs)
Registration desk and coat racks may be located outside entrance in hallway if desired
Garbage cans (4) placed strategically

Service:

Staff serving spritzers on trays as guests arriveand throughout event. Last call 8 PM.
Wheel out cake at 7:15 and serve near dessert table
Formal cake cutting ceremony at 7:30

Buffet Table (include diagram in Part B)

all food set out by 5:45
Green Tablecloth
Keep hot food hot - use chafing dishes
Use cards to label food items
Use 2 service lines along each side of table
Ensure flow at end of service line doesn't flow into dead end
Floral arrangement in centre
Flow should start with plates > cold hors d'oeuvres > hot food > napkins > cutlery

Dessert Table (include diagram in Part B)

Cups / saucers, spoons, dessert forks set up by 5:45
Coffee / tea & squares / fruit out by 6:30

Marks 45 Marks

Part A: Diagram of room - 10 marks
Part B: Diagrams for table set ups -10 marks
Part C: General plan for items needing attention before the day of the event - 5 marks
Part C: General work plan for the event itself - 5 marks
Part D: Scaled up recipe, in metric in Block Format - 10 marks
 NOTE: This assignment requires you to be creative and put together
attached is the outline for reception to be used in Part A(diagram of room)

PART A: DIAGRAM OF ROOM PART D: SCALED RECIPE (hint: needs to be 'block style')

Step by Step Solution

There are 3 Steps involved in it

1 Expert Approved Answer
Step: 1 Unlock blur-text-image
Question Has Been Solved by an Expert!

Get step-by-step solutions from verified subject matter experts

Step: 2 Unlock
Step: 3 Unlock

Students Have Also Explored These Related General Management Questions!