Question: Perform the estimation process for all earthworks for the assigned project. A sample of the arrangement of the solutions is presented below. ITEM TO BE




















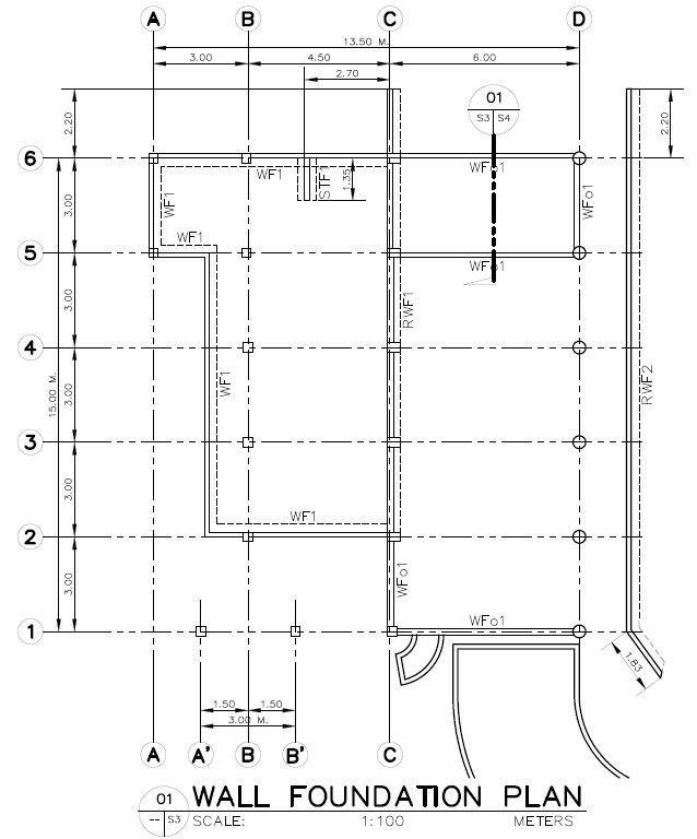
Perform the estimation process for all earthworks for the assigned project. A sample of the arrangement of the solutions is presented below. ITEM TO BE ESTIMATED EQUATION VALUE PLUG-IN SIMPLIFY FINAL ANSWER FOOTING 1 Q- (L*W* Depth of Excavotion) * No of Footings Q = (1.50 M * 1.80 * 1.80 M) * 5 Q = (4.05 mm)*5 Q = 20.25.M Project Title: A PROPOSED TWO-STOREY RESIDENTIAL BUILDING Project Location: Diversion Road, Baybay City, Leyte A client wishes to hire your office to do the earthworks for his project. The land is situated in a sloping terrain as indicated in the drawings attached. The client is requesting for the bill of quantities necessary for the said works. The specifics for the project are as follows: a. Cut and Fill works shall be done prior to any other earthworks. b. Compact fill, if necessary, shall be composed of 0.50 cubic meters of Fine Sand and 1.00 cubic meters of 34 Crushed Gravel. c. Gravel bed shall be 14" Crushed Gravel and shall be compacted before lay outing of footing bars. d. Excess excavated earth shall be removed from the site. Content of Summary Sq. M cu. M cu. M cu. M Item Units Cost Per Unit A. Grading 2,500.00 B. Excavation 200.00 C. Backfill 35.00 D. Cut and Fill 300.00 E. Compact Fill cu. M of Sand 3 cu. M Truck - 3,600.00 cu. M of Gravel 3 cu. M Truck - 3,000.00 F. Hauling cu. M 3 cu. M Truck - 800.00 6 cu. M Truck - 1,400.00 Subitems shall include the Footing, Tie Beams, and the likes. A' B' -0.15 1.157 REFERENCE DATUM 0.00 M --- ALONG GRID 1 B -0.15 REFERENCE DALLIM 10.00 ALONG GRID 2, 3. & 4. B MI REFERENCE DATUM YOU -1.825 M ALONG GRID 5 & 6 02 TIE BEAM POSITIONING 51 52/SCALE: 1:100 METERS 0.30 0.40 0.40 REINFORCEMENTS: VERT. BARS USE: 6-816MM REBARS, GRADE 40 LAT. TIES USE: 10MM REBARS, GRADE 40. SPACED 5 O 50 MM, 5 @ 100 MM, 5 @ 150 MM, & REST @ 200 MM REINFORCEMENTS: VERT. BARS USE: 6-16MM REBARS, GRADE 40 LAT. TIES USE: 10MM REBARS, GRADE 40, SPACED 5 & 50 MM, 5 @ 100 MM. 5 150 MM, & REST @ 200 MM Oso REINFORCEMENTS: VERT. BARS USE: 6-16MM REBARS, GRADE 40 LAT. TIES USE: 10MM REBARS, SPIRAL TIES, PITCH OF 75MM 3 . . ABOVE TRANSITION ABOVE TRANSITION ABOVE TRANSITION 0.37 0.47 0.47 REINFORCEMENTS: VERT. BARS USE: 6-16MM REBARS, GRADE 40 LAT. TIES USE: 10MM REBARS, GRADE 40, SPACED 5 O 50 MM, 5 @ 100 MM, 5 @ 150 MM, & REST @ 200 MM REINFORCEMENTS: VERT. BARS USE: 6-16MM REBARS. GRADE 40 LAT. TIES USE: 10MM REBARS, GRADE 40. SPACED 5 @ 50 MM. 5 @ 100 MM., 5 @ 150 MM, & REST @ 200 MM REINFORCEMENTS: VERT. BARS USE: 6-16MM REBARS, GRADE 40 LAT. TIES USE: W10MM REBARS, SPIRAL TIES, PITCH OF 75MM BELOW TRANSITION BELOW TRANSITION BELOW TRANSITION COLUMN C4 & C4a COLUMN C1, Cia, & C2 COLUMN C3 03 SCHEDULE OF COLUMNS S1 S2 SCALE: 1:20 METERS . B D o.pl 6 5 20 4 3 2 B' .20 4101 1 NOTE: ALL COLUMN OFFSETS SHALL BE MEASURED ABOVE THE COLUMN TRANSITION 04 COLUMN OFFSET PLAN S1 S2 SCALE: 1:30 METERS A B D 3.00 13.50 M 4.50 2.70 6.00 01 S3 S4 2.20 2.20 6 WF WFT) 3.00 WF01 WF 5 WF1 3.00 RWF1 4 15.00 M 3.00 WF1 RWF2 3 3.00 WF1 2 3.00 WF01 WF01 1 03 1.50 1.50 3.00 M A A' B B' 01 WALL FOUNDATION PLAN 1:100 METERS S3 SCALE: B D -0.15 MI REFERENCE DATUM T0.00 1.65 2.24 5.28 ALONG GRID 1 C A B D -X15 MI REFERENCE DALAM 10.00 M 1.675 0.93 -1.825 M 1.65 2.6 5.24 2.24 5.29 0,11 ALONG GRID 2, 3, & 4 B D -0.15 M REFERENCE DATUM 70.00 M 1.675 -1.825 M 1.65 1.48 6.14 2.24 5.29 0.21 ALONG GRID 5 & 6 02 CUT AND FILL PROFILE A2 SI SCALE: 1:100 METERS L 1.20 1.20 1.20 1.20 100 REINFORCEMENTS USE: 9 - 10 MM REBARS, GRADE 40, SPACE EQUALLY O.C. B.W. REINFORCEMENTS USE 9 - 910 MM REBARS. GRADE 40, SPACE EQUALLY O.C. BW REINFORCEMENTS USE 9 - 910 MM REBARS. GRADE 40, SPACED EQUALLY O.C. W REINFORCEMENTS USE 9 - $10 MM REBARS, GRADE 40, SPACED EQUALLY OC BW PLAN PLAN PLAN PLAN AL TRANSITION -1.10 M COL. TRANSITION -1.10 M COL TRANSMON -1.78 M BACKFILL USE: EXCAVATED EARTH COMPACTED EVERY 200 MM BACKFILL USE EXCAVATED EARTH COMPACTED EVERY 200 MM BACKFILL USE EXCAVATE EARTH COMPACTED EVERY 200 MM COL TRANSITION T-1.75 M BACKFILL USE EXCAVATED EARTH COMPACTED EVERY 200 MM 21 . . TOP. OF FOOTING -3.60 M BOT OF EXCAVATION 1-4 DOM CD Try TOP. OF FOOTING -3.60 M BOT OF EXCAVATON -4.00 M LOWIEC TOP. OF FOOTING -3.60 W BOT OF EXCAVATION 1-4.00 4" THK. GRAVEL BED USE 3/4" CRUSHED GRAVEL COMPACTED SECTION TOP OF FOOTING 1-3.60 M BOT. OF EXCAVATION 1-400 M SECTION 4" THK. GRAVEL BED USE 3/4" CRUSHED GRAVEL COMPACTED F1 @ GRIDS A-5 & A-6 4" THK. GRAVEL BED USE: 3/4" CRUSHED CRAVEL COMPACTED SECTION SECTION 4" THK. GRAVEL BED USE 3/4" CRUSHED GRAVEL COMPACTED F1 @ GRID B'-1 F1 @ GRID A'-1 F1 @ GRIDS B-2, B-3, B-4, B-5, & B-6 1.50 REINFORCEMENTS USE: 12 - 410 MM REBARS. GRADE 40. SPACED EQUALLY O.C. B.W COMPACT FILL SEE RETAINING WALL (RW) DETAILS PLAN COL TRANSITION -2.10 M TEL OG BACKFIL USE EXCAVATED EARTH, COMPACTED EVERY 200 MM RAI TOP. OF FOOTING -3.50 M BOT. CF EXCAVATION -4.00 SECTION 4" THK. GRAVEL BED USE: 3/4" CRUSHED GRAVEL COMPACTED F2 @ GRID C-2, C-3, C-4, C-5, & C-6 1.30 REINFORCEMENTS USE 12-910 MM REBARS. GRADE 10. SPACED EQUALLY AW PLAN HII COL TRANSITION -0,10U BACKFILL USE EXCAVATED EARTH. COMPACTED EVERY 200 MM TOP OF FOOTING 1-0 BOT. OF EXCAVATION -4,00 M SECTION 4" THK. GRAVEL BED USE. 3/4" CRUSHED GRAVEL COMPACTED F2 ALONG GRID D 03 SCHEDULE OF COL. FOOTING 51 52 SCALE METERS 1:50 VARIABLE TOP BAR USE: 4-16MM REBAR, GRADE 40, IN BUNDLE OF 2 0.37 M 0.45 M 0.45 M BOTTOM BAR USE: 2-16MM REBAR, GRADE 40 STIRRUPS USE: 10 MM REBAR, GRADE 40, CLOSED STIRRUPS, SPACED: 5 @ 50 MM, @ 100 MM, & REST @ 150 MM LONGITUDINAL SECTION SCALE: 1:30 METERS CROSS SECTION SCALE: 1:20 METERS 01 TYP. TIE BEAM (TB1) DETAILS S1 S2 SCALED AS SHOWN LOWER GROUND LEVEL -1.625 M 1.00 ZOCALO WALL USE. 6" CHB WTH 012 MM REBARS, GRADE 40. SPACED @ 400 MM O.C. B.W. BACKFILL USE EXCAVATED EARTHCOMPACTED EVERY 200 MM STAIR FOOTING (STF1) USE: 250 MM X 400 MM RC, WITH 3-412 MM MAIN REBARS. GRADE 40. AND 910 MM TEMP. BARS, GRADE 40, SPACEO a 300 MM O.C. DEPTH OF EXCAVATION -2.725 M 0.40 05 STAIR FOOTING DETAIL s33 SCALE: 1:20 METERS 0.83 REFERENCE DATUM 0.00 M BACKFILL USE: EXCAVATED EARTH, COMPACTED EVERY 200 VM RETAINING WALL FOOTING (RWF2) SEE RW2 DETAILS 4" THK. GRAVEL BED USE 3/4" CRUSHED GRAVEL COMPACTED 0.85 DEPTH OF EXCAVATION -0.95 M - 0.40 04 RETAINING WALL 02 BLOW-UP S3 S3 SCALE: 1:30 METERS I b.bd SOIL PROFILE UNE SEE CUT AND FILL PROFILE PAVING GUTTER USE: 200 MM X 250 MM X 250 MM CONCRETE BLOCKS PAVING UNITS USE: 4" X 8" x 2" PAUNG BRICKS ON 4" PAVING BED REFERENCE DATUM 0.00 M DEPTH OF EXCA. -0.25 ML 1.80 LOWER GROUND LEVEL -1.625 M .20 DEPTH OF EXCA. -1.925 M WATERPROOF LINING USE: 1/2" CEOTEXTILE FOUNDATION DRAIN USE: 3/4" GRAVEL, COMPACTED @ EVERY 200 MM DRAIN USE: 6" PVC WASTE PIPE WITH 10 MM PERFORATIONS AT THE BOTTOM BACKFILL USE: EXCAVATED EARTH, COMPACTED @ EVERY 200 MM RETAINING WALL FOOTING (RWF1) SEE RW1 DETAILS 4" THK. GRAVEL BED USE: 3/4" CRUSHED CRAVEL, COMPACTED 0.80 DEPTH OF EXCA. -2.725 M 0.40 10.30 0.45 0.925 1 03 RETAINING WALL 01 BLOW-UP S3 S3 SCALE: METERS 3 1:30 SLAB ON FILL (SOF2) USE: 150 MM THK. RC, WITH 12 MM REBARS, GRADE 40, SPACED @ 300 MM O.C. B.W. 2" THK GRAVEL BED USE: 3/4" CRUSHED GRAVEL, COMPACTED 3.30 REFERENCE DATUM 0.00 M O BOT. OF ZOCALO -0.85 M TB1 TB1 ZOCALO WALL USE: USE: 6" CHB WITH 012 MM REBARS, GRADE 40, SPACED @ 400 MM O.C. B.W. BOT. OF TB1 -1.30 M 01 WALL FOUNDATION 01 (WF01) DETAILS S3 S4 SCALE: 1:30 METERS 0,20 0.20 005 10.15 0.25 0.15 VERT. BARS USE: 12MM REBARS, GRADE 40, SPACED @ 250 MM O.C. (MAX) VERT. BARS USE: 12MM REBARS, GRADE 40, SPACED @ 250 MM O.C. (MAX) 1.30 HOR. BARS USE: 12MM REBARS, GRADE 40, SPACED @ 250 MM O.C. (MAX) 1.85 M HOR. BARS USE: 012MM REBARS, GRADE 40, SPACED 250 MM O.C. (MAX) 2.30 2.80 M 0.25 BOTTOM BARS USE: 3-12MM REBARS, GRADE 40, SPACED EQUALLY OSO 01025 0.40 MI BOTTOM BARS USE: 3-12MM REBARS, GRADE 40, SPACED EQUALLY 0.30 0.20 RW2 DETAIL 01075 0.40 M RW1 DETAIL 02 S3 S4 SCALE: RETAINING WALL WALL DETAILS 1:20 METERS A B D 13.50 M 4.50 6.00 3.00 ,475 SLAB ON FILL (SOF1) USE 150 MM THK, RC. WITH 612 MM REBARS, GRADE 40. SPACED 300 MM O.C. B.W. 3.85 SLAB ON FILL (SOF 2) USE: 150 MM THK. RC WITH 612 MM REBARS, GRADE 40. SPACED @ 300 MM O.C. B.W. SF1 6 - 2.20 1.50 3.00 SFTIT SF1 SF2 SF2a SOF2 SF 2a SF1 SF1 SEL SF1 5 SF1 SF2 3.00 1.625 4 SOF1 SF1 15.00 M 005 SF1 SF2. PAVING GUTTER PAVING GUTTER 3 3 - SF21 3.00 2 SF1 3.00 1 1.50 1.50 3.0 M. ' B B CENTER OF 03 LOWER GND FLOOR FRAMING PLAN 42 54 SCALE: 1:100 0.35 METERS d.ol 0.45 - SLAB REINFORCEMENTS USE: 012 MM REBARS, GRADE 40, SPACED @ 300 MM O.C. B.W. 0.40 1 2" THK GRAVEL BED USE: 3/4" CRUSHED GRAVEL, COMPACTED O ADD'L CUT BARS USE: 012 MM REBARS, GRADE 40, SPACED @ 300 MM 0.C. 0.30 0.0$ SLAB FOOTING REINFORCEMENTS USE: 3-12 MM REBARS, GRADE 40, SPACED EQUALLY SF1 DETAILS 04 RETAINING WALL DETAILS S4 S4/SCALE: 1:10 METERS CENTER OF WALL SLAB REINFORCEMENTS USE: 912 MM REBARS, GRADE 40. SPACED @ 300 MM O.C. B.W 0.35 0.35 0.15 2" THK GRAVEL BED USE: 3/4" CRUSHED GRAVEL, COMPACTED 20 ADD'L CUT BARS USE: 912 MM REBARS, GRADE 40. SPACED @ 300 MM O.C. 0.05 0.05 0.05 0.15 0.bo 1.00 SLAB FOOTING REINFORCEMENTS USE: 3-12 MM REBARS, GRADE 40, SPACED EQUALLY SF2 DETAILS CENTER OF WALL SLAB REINFORCEMENTS USE: $12 MM REBARS, CRADE 40. SPACED @ 300 MM O.C. B.W 0.35 0.35 2" THK GRAVEL BED USE: 3/4" CRUSHED GRAVEL, COMPACTED 0.05 0.05 0.15 0.05 0.30 ADD'L CUT BARS USE: 912 MM REBARS. GRADE 40, SPACED @ 300 MM O.C. SLAB FOOTING REINFORCEMENTS USE: 3-012 MM REBARS, GRADE 40, SPACED EQUALLY 0.0$ SF29 DETAILS SR A8 B C 88 D 89 90 13.50 M 1.50 7.18 + C2F1 C2F1 C3F2 C4F 2.20 6 T131 TB1 T31 3.0D C2F1 C2F1 C3F2 C4F2 5 TB1 TB1 TB1 2015 C2F1 C3F2 C4F21 4 TB1 TBI 15.00 OOK C2F1 C3F2 M TB1 TE1 9.00 C2F1 C3F2 N 0055 CIF1 C10F1 TB1 TB1 T81 + + 50 1.50 3.0 M ' ) B' 01 COLUMN FOUNDATION PLAN A2 SISCALE 1: 100 METERS B D -0.154 REFERENCE DATUM TO.COM T0.00 M RWF2 -1.225 M BOT OF FIRELL -2.625 WF1 RINT 1 4 ALONG GRID 2, 3, & 4 B D REFERENCE DATUM -0.15 Mb ROJ_OF_KE2 10.00 M RWF2 -1825 ML BOT. OF WEL & RELO -2.625 MB RWF1 - ALONG GRID 5 & 6 02 WALL FOOTING POSITIONING METERS LOWER GROUND LEVEL -1.825 M 53 S5 SCALE: 1:100 SLAB FOOTING SEE SLAB FOOTING DETAILS SOIL PROFILE LINE SEE CUT AND FILL PROFILE SLAB ON FILL (SOF1) USE: 150 MM THK. RC, WITH 12 MM REBARS, GRADE 40, SPACED @ 300 MM O.C. B.W. LOWER GROUND LEVEL -1.625 M 0.20 0.15 1.00 ZOCALO WALL USE: 6" CHB WITH 012 MM REBARS, GRADE 40, SPACED @ 400 MM O.C. B.W. BACKFILL USE: EXCAVATED EARTH, COMPACTED @ EVERY 200 MM WALL FOOTING (WF1) USE: 250 MM X 400 MM RC, WITH 3-912 MM MAIN REBARS, GRADE 40, AND 10 MM TEMP. BARS, GRADE 40, SPACED @ 300 MM O.C. 4" THK. GRAVEL BED USE: 3/4" CRUSHED GRAVEL, COMPACTED DEPTH OF EXCAVATION -2.725 M 0.40 02 RETAINING WALL 01 BLOW-UP S3 S3 SCALE: 1:30 METERS Perform the estimation process for all earthworks for the assigned project. A sample of the arrangement of the solutions is presented below. ITEM TO BE ESTIMATED EQUATION VALUE PLUG-IN SIMPLIFY FINAL ANSWER FOOTING 1 Q- (L*W* Depth of Excavotion) * No of Footings Q = (1.50 M * 1.80 * 1.80 M) * 5 Q = (4.05 mm)*5 Q = 20.25.M Project Title: A PROPOSED TWO-STOREY RESIDENTIAL BUILDING Project Location: Diversion Road, Baybay City, Leyte A client wishes to hire your office to do the earthworks for his project. The land is situated in a sloping terrain as indicated in the drawings attached. The client is requesting for the bill of quantities necessary for the said works. The specifics for the project are as follows: a. Cut and Fill works shall be done prior to any other earthworks. b. Compact fill, if necessary, shall be composed of 0.50 cubic meters of Fine Sand and 1.00 cubic meters of 34 Crushed Gravel. c. Gravel bed shall be 14" Crushed Gravel and shall be compacted before lay outing of footing bars. d. Excess excavated earth shall be removed from the site. Content of Summary Sq. M cu. M cu. M cu. M Item Units Cost Per Unit A. Grading 2,500.00 B. Excavation 200.00 C. Backfill 35.00 D. Cut and Fill 300.00 E. Compact Fill cu. M of Sand 3 cu. M Truck - 3,600.00 cu. M of Gravel 3 cu. M Truck - 3,000.00 F. Hauling cu. M 3 cu. M Truck - 800.00 6 cu. M Truck - 1,400.00 Subitems shall include the Footing, Tie Beams, and the likes. A' B' -0.15 1.157 REFERENCE DATUM 0.00 M --- ALONG GRID 1 B -0.15 REFERENCE DALLIM 10.00 ALONG GRID 2, 3. & 4. B MI REFERENCE DATUM YOU -1.825 M ALONG GRID 5 & 6 02 TIE BEAM POSITIONING 51 52/SCALE: 1:100 METERS 0.30 0.40 0.40 REINFORCEMENTS: VERT. BARS USE: 6-816MM REBARS, GRADE 40 LAT. TIES USE: 10MM REBARS, GRADE 40. SPACED 5 O 50 MM, 5 @ 100 MM, 5 @ 150 MM, & REST @ 200 MM REINFORCEMENTS: VERT. BARS USE: 6-16MM REBARS, GRADE 40 LAT. TIES USE: 10MM REBARS, GRADE 40, SPACED 5 & 50 MM, 5 @ 100 MM. 5 150 MM, & REST @ 200 MM Oso REINFORCEMENTS: VERT. BARS USE: 6-16MM REBARS, GRADE 40 LAT. TIES USE: 10MM REBARS, SPIRAL TIES, PITCH OF 75MM 3 . . ABOVE TRANSITION ABOVE TRANSITION ABOVE TRANSITION 0.37 0.47 0.47 REINFORCEMENTS: VERT. BARS USE: 6-16MM REBARS, GRADE 40 LAT. TIES USE: 10MM REBARS, GRADE 40, SPACED 5 O 50 MM, 5 @ 100 MM, 5 @ 150 MM, & REST @ 200 MM REINFORCEMENTS: VERT. BARS USE: 6-16MM REBARS. GRADE 40 LAT. TIES USE: 10MM REBARS, GRADE 40. SPACED 5 @ 50 MM. 5 @ 100 MM., 5 @ 150 MM, & REST @ 200 MM REINFORCEMENTS: VERT. BARS USE: 6-16MM REBARS, GRADE 40 LAT. TIES USE: W10MM REBARS, SPIRAL TIES, PITCH OF 75MM BELOW TRANSITION BELOW TRANSITION BELOW TRANSITION COLUMN C4 & C4a COLUMN C1, Cia, & C2 COLUMN C3 03 SCHEDULE OF COLUMNS S1 S2 SCALE: 1:20 METERS . B D o.pl 6 5 20 4 3 2 B' .20 4101 1 NOTE: ALL COLUMN OFFSETS SHALL BE MEASURED ABOVE THE COLUMN TRANSITION 04 COLUMN OFFSET PLAN S1 S2 SCALE: 1:30 METERS A B D 3.00 13.50 M 4.50 2.70 6.00 01 S3 S4 2.20 2.20 6 WF WFT) 3.00 WF01 WF 5 WF1 3.00 RWF1 4 15.00 M 3.00 WF1 RWF2 3 3.00 WF1 2 3.00 WF01 WF01 1 03 1.50 1.50 3.00 M A A' B B' 01 WALL FOUNDATION PLAN 1:100 METERS S3 SCALE: B D -0.15 MI REFERENCE DATUM T0.00 1.65 2.24 5.28 ALONG GRID 1 C A B D -X15 MI REFERENCE DALAM 10.00 M 1.675 0.93 -1.825 M 1.65 2.6 5.24 2.24 5.29 0,11 ALONG GRID 2, 3, & 4 B D -0.15 M REFERENCE DATUM 70.00 M 1.675 -1.825 M 1.65 1.48 6.14 2.24 5.29 0.21 ALONG GRID 5 & 6 02 CUT AND FILL PROFILE A2 SI SCALE: 1:100 METERS L 1.20 1.20 1.20 1.20 100 REINFORCEMENTS USE: 9 - 10 MM REBARS, GRADE 40, SPACE EQUALLY O.C. B.W. REINFORCEMENTS USE 9 - 910 MM REBARS. GRADE 40, SPACE EQUALLY O.C. BW REINFORCEMENTS USE 9 - 910 MM REBARS. GRADE 40, SPACED EQUALLY O.C. W REINFORCEMENTS USE 9 - $10 MM REBARS, GRADE 40, SPACED EQUALLY OC BW PLAN PLAN PLAN PLAN AL TRANSITION -1.10 M COL. TRANSITION -1.10 M COL TRANSMON -1.78 M BACKFILL USE: EXCAVATED EARTH COMPACTED EVERY 200 MM BACKFILL USE EXCAVATED EARTH COMPACTED EVERY 200 MM BACKFILL USE EXCAVATE EARTH COMPACTED EVERY 200 MM COL TRANSITION T-1.75 M BACKFILL USE EXCAVATED EARTH COMPACTED EVERY 200 MM 21 . . TOP. OF FOOTING -3.60 M BOT OF EXCAVATION 1-4 DOM CD Try TOP. OF FOOTING -3.60 M BOT OF EXCAVATON -4.00 M LOWIEC TOP. OF FOOTING -3.60 W BOT OF EXCAVATION 1-4.00 4" THK. GRAVEL BED USE 3/4" CRUSHED GRAVEL COMPACTED SECTION TOP OF FOOTING 1-3.60 M BOT. OF EXCAVATION 1-400 M SECTION 4" THK. GRAVEL BED USE 3/4" CRUSHED GRAVEL COMPACTED F1 @ GRIDS A-5 & A-6 4" THK. GRAVEL BED USE: 3/4" CRUSHED CRAVEL COMPACTED SECTION SECTION 4" THK. GRAVEL BED USE 3/4" CRUSHED GRAVEL COMPACTED F1 @ GRID B'-1 F1 @ GRID A'-1 F1 @ GRIDS B-2, B-3, B-4, B-5, & B-6 1.50 REINFORCEMENTS USE: 12 - 410 MM REBARS. GRADE 40. SPACED EQUALLY O.C. B.W COMPACT FILL SEE RETAINING WALL (RW) DETAILS PLAN COL TRANSITION -2.10 M TEL OG BACKFIL USE EXCAVATED EARTH, COMPACTED EVERY 200 MM RAI TOP. OF FOOTING -3.50 M BOT. CF EXCAVATION -4.00 SECTION 4" THK. GRAVEL BED USE: 3/4" CRUSHED GRAVEL COMPACTED F2 @ GRID C-2, C-3, C-4, C-5, & C-6 1.30 REINFORCEMENTS USE 12-910 MM REBARS. GRADE 10. SPACED EQUALLY AW PLAN HII COL TRANSITION -0,10U BACKFILL USE EXCAVATED EARTH. COMPACTED EVERY 200 MM TOP OF FOOTING 1-0 BOT. OF EXCAVATION -4,00 M SECTION 4" THK. GRAVEL BED USE. 3/4" CRUSHED GRAVEL COMPACTED F2 ALONG GRID D 03 SCHEDULE OF COL. FOOTING 51 52 SCALE METERS 1:50 VARIABLE TOP BAR USE: 4-16MM REBAR, GRADE 40, IN BUNDLE OF 2 0.37 M 0.45 M 0.45 M BOTTOM BAR USE: 2-16MM REBAR, GRADE 40 STIRRUPS USE: 10 MM REBAR, GRADE 40, CLOSED STIRRUPS, SPACED: 5 @ 50 MM, @ 100 MM, & REST @ 150 MM LONGITUDINAL SECTION SCALE: 1:30 METERS CROSS SECTION SCALE: 1:20 METERS 01 TYP. TIE BEAM (TB1) DETAILS S1 S2 SCALED AS SHOWN LOWER GROUND LEVEL -1.625 M 1.00 ZOCALO WALL USE. 6" CHB WTH 012 MM REBARS, GRADE 40. SPACED @ 400 MM O.C. B.W. BACKFILL USE EXCAVATED EARTHCOMPACTED EVERY 200 MM STAIR FOOTING (STF1) USE: 250 MM X 400 MM RC, WITH 3-412 MM MAIN REBARS. GRADE 40. AND 910 MM TEMP. BARS, GRADE 40, SPACEO a 300 MM O.C. DEPTH OF EXCAVATION -2.725 M 0.40 05 STAIR FOOTING DETAIL s33 SCALE: 1:20 METERS 0.83 REFERENCE DATUM 0.00 M BACKFILL USE: EXCAVATED EARTH, COMPACTED EVERY 200 VM RETAINING WALL FOOTING (RWF2) SEE RW2 DETAILS 4" THK. GRAVEL BED USE 3/4" CRUSHED GRAVEL COMPACTED 0.85 DEPTH OF EXCAVATION -0.95 M - 0.40 04 RETAINING WALL 02 BLOW-UP S3 S3 SCALE: 1:30 METERS I b.bd SOIL PROFILE UNE SEE CUT AND FILL PROFILE PAVING GUTTER USE: 200 MM X 250 MM X 250 MM CONCRETE BLOCKS PAVING UNITS USE: 4" X 8" x 2" PAUNG BRICKS ON 4" PAVING BED REFERENCE DATUM 0.00 M DEPTH OF EXCA. -0.25 ML 1.80 LOWER GROUND LEVEL -1.625 M .20 DEPTH OF EXCA. -1.925 M WATERPROOF LINING USE: 1/2" CEOTEXTILE FOUNDATION DRAIN USE: 3/4" GRAVEL, COMPACTED @ EVERY 200 MM DRAIN USE: 6" PVC WASTE PIPE WITH 10 MM PERFORATIONS AT THE BOTTOM BACKFILL USE: EXCAVATED EARTH, COMPACTED @ EVERY 200 MM RETAINING WALL FOOTING (RWF1) SEE RW1 DETAILS 4" THK. GRAVEL BED USE: 3/4" CRUSHED CRAVEL, COMPACTED 0.80 DEPTH OF EXCA. -2.725 M 0.40 10.30 0.45 0.925 1 03 RETAINING WALL 01 BLOW-UP S3 S3 SCALE: METERS 3 1:30 SLAB ON FILL (SOF2) USE: 150 MM THK. RC, WITH 12 MM REBARS, GRADE 40, SPACED @ 300 MM O.C. B.W. 2" THK GRAVEL BED USE: 3/4" CRUSHED GRAVEL, COMPACTED 3.30 REFERENCE DATUM 0.00 M O BOT. OF ZOCALO -0.85 M TB1 TB1 ZOCALO WALL USE: USE: 6" CHB WITH 012 MM REBARS, GRADE 40, SPACED @ 400 MM O.C. B.W. BOT. OF TB1 -1.30 M 01 WALL FOUNDATION 01 (WF01) DETAILS S3 S4 SCALE: 1:30 METERS 0,20 0.20 005 10.15 0.25 0.15 VERT. BARS USE: 12MM REBARS, GRADE 40, SPACED @ 250 MM O.C. (MAX) VERT. BARS USE: 12MM REBARS, GRADE 40, SPACED @ 250 MM O.C. (MAX) 1.30 HOR. BARS USE: 12MM REBARS, GRADE 40, SPACED @ 250 MM O.C. (MAX) 1.85 M HOR. BARS USE: 012MM REBARS, GRADE 40, SPACED 250 MM O.C. (MAX) 2.30 2.80 M 0.25 BOTTOM BARS USE: 3-12MM REBARS, GRADE 40, SPACED EQUALLY OSO 01025 0.40 MI BOTTOM BARS USE: 3-12MM REBARS, GRADE 40, SPACED EQUALLY 0.30 0.20 RW2 DETAIL 01075 0.40 M RW1 DETAIL 02 S3 S4 SCALE: RETAINING WALL WALL DETAILS 1:20 METERS A B D 13.50 M 4.50 6.00 3.00 ,475 SLAB ON FILL (SOF1) USE 150 MM THK, RC. WITH 612 MM REBARS, GRADE 40. SPACED 300 MM O.C. B.W. 3.85 SLAB ON FILL (SOF 2) USE: 150 MM THK. RC WITH 612 MM REBARS, GRADE 40. SPACED @ 300 MM O.C. B.W. SF1 6 - 2.20 1.50 3.00 SFTIT SF1 SF2 SF2a SOF2 SF 2a SF1 SF1 SEL SF1 5 SF1 SF2 3.00 1.625 4 SOF1 SF1 15.00 M 005 SF1 SF2. PAVING GUTTER PAVING GUTTER 3 3 - SF21 3.00 2 SF1 3.00 1 1.50 1.50 3.0 M. ' B B CENTER OF 03 LOWER GND FLOOR FRAMING PLAN 42 54 SCALE: 1:100 0.35 METERS d.ol 0.45 - SLAB REINFORCEMENTS USE: 012 MM REBARS, GRADE 40, SPACED @ 300 MM O.C. B.W. 0.40 1 2" THK GRAVEL BED USE: 3/4" CRUSHED GRAVEL, COMPACTED O ADD'L CUT BARS USE: 012 MM REBARS, GRADE 40, SPACED @ 300 MM 0.C. 0.30 0.0$ SLAB FOOTING REINFORCEMENTS USE: 3-12 MM REBARS, GRADE 40, SPACED EQUALLY SF1 DETAILS 04 RETAINING WALL DETAILS S4 S4/SCALE: 1:10 METERS CENTER OF WALL SLAB REINFORCEMENTS USE: 912 MM REBARS, GRADE 40. SPACED @ 300 MM O.C. B.W 0.35 0.35 0.15 2" THK GRAVEL BED USE: 3/4" CRUSHED GRAVEL, COMPACTED 20 ADD'L CUT BARS USE: 912 MM REBARS, GRADE 40. SPACED @ 300 MM O.C. 0.05 0.05 0.05 0.15 0.bo 1.00 SLAB FOOTING REINFORCEMENTS USE: 3-12 MM REBARS, GRADE 40, SPACED EQUALLY SF2 DETAILS CENTER OF WALL SLAB REINFORCEMENTS USE: $12 MM REBARS, CRADE 40. SPACED @ 300 MM O.C. B.W 0.35 0.35 2" THK GRAVEL BED USE: 3/4" CRUSHED GRAVEL, COMPACTED 0.05 0.05 0.15 0.05 0.30 ADD'L CUT BARS USE: 912 MM REBARS. GRADE 40, SPACED @ 300 MM O.C. SLAB FOOTING REINFORCEMENTS USE: 3-012 MM REBARS, GRADE 40, SPACED EQUALLY 0.0$ SF29 DETAILS SR A8 B C 88 D 89 90 13.50 M 1.50 7.18 + C2F1 C2F1 C3F2 C4F 2.20 6 T131 TB1 T31 3.0D C2F1 C2F1 C3F2 C4F2 5 TB1 TB1 TB1 2015 C2F1 C3F2 C4F21 4 TB1 TBI 15.00 OOK C2F1 C3F2 M TB1 TE1 9.00 C2F1 C3F2 N 0055 CIF1 C10F1 TB1 TB1 T81 + + 50 1.50 3.0 M ' ) B' 01 COLUMN FOUNDATION PLAN A2 SISCALE 1: 100 METERS B D -0.154 REFERENCE DATUM TO.COM T0.00 M RWF2 -1.225 M BOT OF FIRELL -2.625 WF1 RINT 1 4 ALONG GRID 2, 3, & 4 B D REFERENCE DATUM -0.15 Mb ROJ_OF_KE2 10.00 M RWF2 -1825 ML BOT. OF WEL & RELO -2.625 MB RWF1 - ALONG GRID 5 & 6 02 WALL FOOTING POSITIONING METERS LOWER GROUND LEVEL -1.825 M 53 S5 SCALE: 1:100 SLAB FOOTING SEE SLAB FOOTING DETAILS SOIL PROFILE LINE SEE CUT AND FILL PROFILE SLAB ON FILL (SOF1) USE: 150 MM THK. RC, WITH 12 MM REBARS, GRADE 40, SPACED @ 300 MM O.C. B.W. LOWER GROUND LEVEL -1.625 M 0.20 0.15 1.00 ZOCALO WALL USE: 6" CHB WITH 012 MM REBARS, GRADE 40, SPACED @ 400 MM O.C. B.W. BACKFILL USE: EXCAVATED EARTH, COMPACTED @ EVERY 200 MM WALL FOOTING (WF1) USE: 250 MM X 400 MM RC, WITH 3-912 MM MAIN REBARS, GRADE 40, AND 10 MM TEMP. BARS, GRADE 40, SPACED @ 300 MM O.C. 4" THK. GRAVEL BED USE: 3/4" CRUSHED GRAVEL, COMPACTED DEPTH OF EXCAVATION -2.725 M 0.40 02 RETAINING WALL 01 BLOW-UP S3 S3 SCALE: 1:30 METERS
Step by Step Solution
There are 3 Steps involved in it
Get step-by-step solutions from verified subject matter experts
