Question: Project # 2 - Laundromat - Individual Assignment Due Date: Sunday April 7th, 2022 at 11:59 PM Quantity Takeoff for Masonry, Concrete, Rigid Insulation Note:


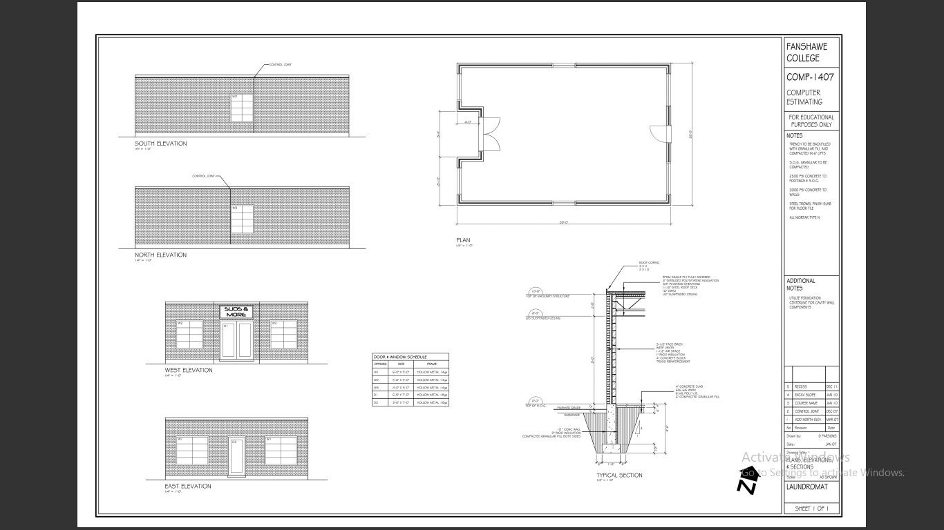
Project # 2 - Laundromat - Individual Assignment Due Date: Sunday April 7th, 2022 at 11:59 PM Quantity Takeoff for Masonry, Concrete, Rigid Insulation Note: This project is in square feet except concrete which is in cubic meters Masonry 1. Find the total Square footage of the modular brick masonry 2. Find the number of bricks required for this project - Use 5% wastage. Bricks are available per 1000 units 3. Find the total Square footage of the Concrete Block masonry 4. Find the number of Blocks required for this project - Use 6%% wastage. 5. No masonry deductions for masonry less than 10 sq ft 6. Find the number of brick ties. Brick Ties are installed at 1 tie per 5.35 Sqft ie 5.35 Sq ft/tie Concrete 1. Calculate the volume of concrete for Slab on Grade in Cubic Meters use 5% wastage 2. Calculate the volume of concrete for foundations in cubic Meters( Use of centre line method encouraged). Use 5% wastage 3. Calculate the number of sheets of WWM required for this project. Each sheet is 160 sqft. Use 20% additional for overlap and wastage. Rigid Insulation 1. Calculate the number of sheets of 1" rigid insulation required for masonry 2. Calculate the number of sheets of 2" rigid insulation required for the foundation wall Note: Each sheet of rigid insulation is 2'x8' = 16 sqft (Assume use 5% wastage) Hint: Number of units of brick and block required is as per the table below Face area of Brick is 2 2/3" X 8" Face Area of Block is 8" X 16" Materials (per 100 sf face area) Materials Concrete Block Brick OOO 8 x 16 8 x 18 5 x 12 225" x 4" x 8" MODULAR No. of units 112.5 100 240 675 Activate Windows Show your calculations in excel sheet Go to Settings to activate Windows. Mark up pdf using Bluebeam to show your work Note: No Copy Paste. Fanshawe Plagiarism policy will be strictly enforcedFANSHAWE COLLEGE COMP- 1 407 COMPUTER ESTIMATING FOR EDUCATIONAL PURPOSES ONLY SOUTH ELEVATION NOTES FRENCH TO BE BACALLED 30 6. GRANULAR TO D COMPACTED CONTROL JOINT 210 CONCRETE 70 FOOTINGS # 3.D.G. STEH, TROWEL RASH SUES FOR FLOOR TILE 4L MORTAR THE PLAN NORTH ELEVATION ADDITIONAL NOTES UTILITY FOUNDATION SUDS & MORY COMPONENTS SITE" PACE BANDS DOOR : WINDO Y SCHEDULE WEST ELEVATION FRAME CONCRETE SUD CULFOLYYA DEC 11 2 CONTROL JOM DEC 07 ADD NORTH ELEV MAL UF AMULAR FILL BOTH SEES DPARSONS JAM OF Activa PLANS ELEVATIONS) IS # SECTIONS TYPICAL SECTION GO o settings to go late Windows. EAST ELEVATION N LAUNDROMAT SHEET I OF
Step by Step Solution
There are 3 Steps involved in it
Get step-by-step solutions from verified subject matter experts
