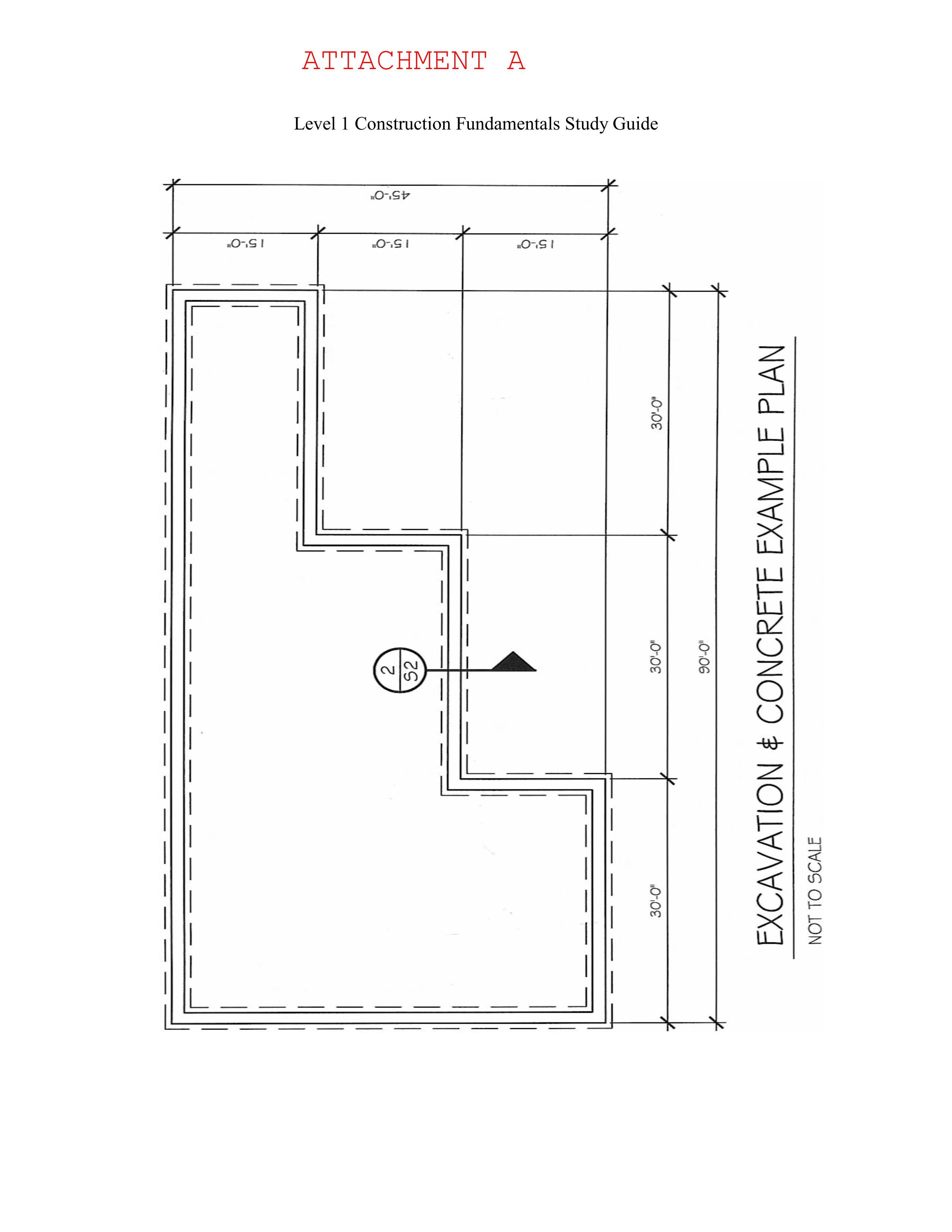
Question: Using attachments A , B , and C Answer the following: 1 . What is the LF of Forming for the Spread footing? 2 .
Using attachments A B and C Answer the following:
What is the LF of Forming for the Spread footing?
What is the SF of Forming for foundation walls?
What are the lbs of # bar in the Spread footing?
Step by Step Solution
There are 3 Steps involved in it
1 Expert Approved Answer
Step: 1 Unlock
Question Has Been Solved by an Expert!
Get step-by-step solutions from verified subject matter experts
Step: 2 Unlock
Step: 3 Unlock
