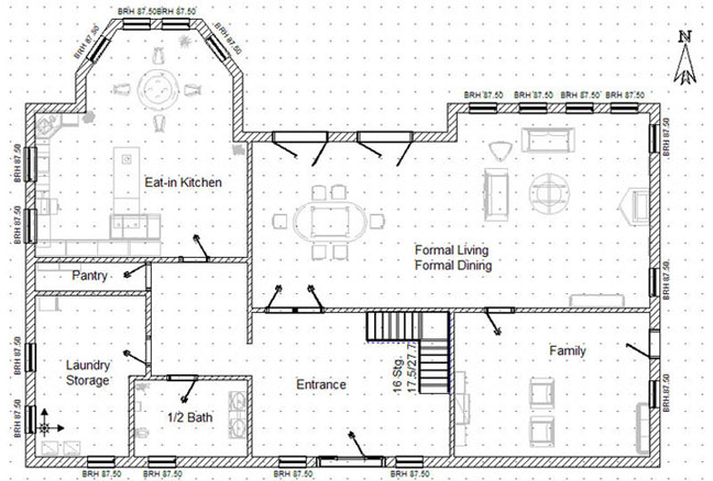
Question: 1. Using Paint, open the file floorplan.jpg 2. Using Paint, determine the x- and y-coordinates necessary to create three clickable areas on the map image.
1. Using Paint, open the file floorplan.jpg 2. Using Paint, determine the x- and y-coordinates necessary to create three clickable areas on the map image. Use two rectangular-shaped areas for the Family room and the Entrance. Use a polygonal-shaped area for the Laundry Storage room. Write down these coordinates for later use. 3. Using Notepad++, create a new HTML file with the title Lab 5-3 in the main heading section. 4. Make all headings and links (other than the e-mail link) red. Insert left- and right-margins of 20 pixels. Make the text Arial 11 point font. Links should have no text-decoration. (Hint: Use an embedded style sheet for these styles.) 5. Begin the body section by adding the floorplan.jpg image, as shown in Figure below.
6. Use the usemap attribute usemap="#menubar" in the tag.
7. Enter the tags required to create the image map named menubar. 8. Enter the tags required to define three clickable areas on the image floorplan.jpg. Use the x- and y-coordinates determined in Step 2 and set the href attribute to display images


BRH 87 50ERH 7. 2 Eat-in Kitchen Formal Living Formal Dining Pantry Family Laundry StorageEntrance 1/2 Bath RH 8750 BRH 87.0 Montego Herrara Homesrd ah ts heading floorplan.ipg used as image map Montego Herrara Homes has been building in the greater Dalas area since 1980 Click the rooms in the floorplan above or the text links belo to aundrytext decoration red text links with no Figure 5-41 BRH 87 50ERH 7. 2 Eat-in Kitchen Formal Living Formal Dining Pantry Family Laundry StorageEntrance 1/2 Bath RH 8750 BRH 87.0 Montego Herrara Homesrd ah ts heading floorplan.ipg used as image map Montego Herrara Homes has been building in the greater Dalas area since 1980 Click the rooms in the floorplan above or the text links belo to aundrytext decoration red text links with no Figure 5-41
Step by Step Solution
There are 3 Steps involved in it
Get step-by-step solutions from verified subject matter experts
