Question: Case Study Question C Full Answers please Case Study You are part of an operations team consisting of yourself as the Project Manager, an engineering
Case Study
Question C
Full Answers please



Case Study
You are part of an operations team consisting of yourself as the Project Manager, an engineering technician, a Scheduler/Planner, a Production Engineer, a Purchasing officer and a representative from the finance department.
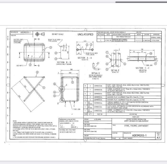
The team task is to produce a new collapsible camp chair for the Scouts as per the preliminary designs supplied (see below). The project involves scoping what must be planned and implemented to be ready for manufacture, packaging and despatch of these chairs. Your company makes furniture, but have never made a collapsible camp chair before.
The estimated time of completion for the project is 4 months and you are required to make 1000 items. Assume that the start date of the project is today.
The Manufacturing department have advised that they require 2 weeks to manufacture the chairs and the Despatch department have advised that they require 2 weeks to have the items packaged and out of the warehouse.
b) Using the table on page 11 as an example, create a list of tasks for the project (a minimum of 10 tasks is required and the following tasks must also be used as part of the 10: Source Parts and Materials; Determine the Workflow/Process Plan; Prototype; Training; Manufacture; Despatch). The purpose of this list of tasks is to provide clear and precise information to your team members to allow them to achieve the goals of the team project. These tasks will be established as a result of the project start up meeting, and distributed to team members accordingly. Dont forget to
i. prioritise them,
ii. provide target dates which are realistic and incorporate individual department requirements
iii. and provide the actions and the resources (both people and materials) required in order to achieve each goal, and state which team member/s will be involved
Step by Step Solution
There are 3 Steps involved in it
1 Expert Approved Answer
Step: 1 Unlock
Question Has Been Solved by an Expert!
Get step-by-step solutions from verified subject matter experts
Step: 2 Unlock
Step: 3 Unlock
