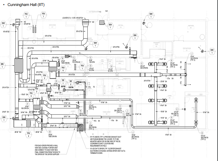
Question: Draw SA , RA , OA , and EA in different colors ( e . g . , SA: Green, RA: Orange, OA: Blue, EA:
Draw SA RA OA and EA in different colors eg SA: Green, RA: Orange, OA: Blue, EA: Red
you may want to open the file in PowerPoint or other drawing programs to edit the image.
How many supply diffusers do you see?
How many return grilles do you see?
Which devices or systems are used for thermal comfort and indoor air quality?Cunningham Hall IIT
Step by Step Solution
There are 3 Steps involved in it
1 Expert Approved Answer
Step: 1 Unlock
Question Has Been Solved by an Expert!
Get step-by-step solutions from verified subject matter experts
Step: 2 Unlock
Step: 3 Unlock
