Civil Engineering Questions and Answers December 04, 2019

Expert-verified solutions to help you succeed

Showing 1100 - 1200 of 1500
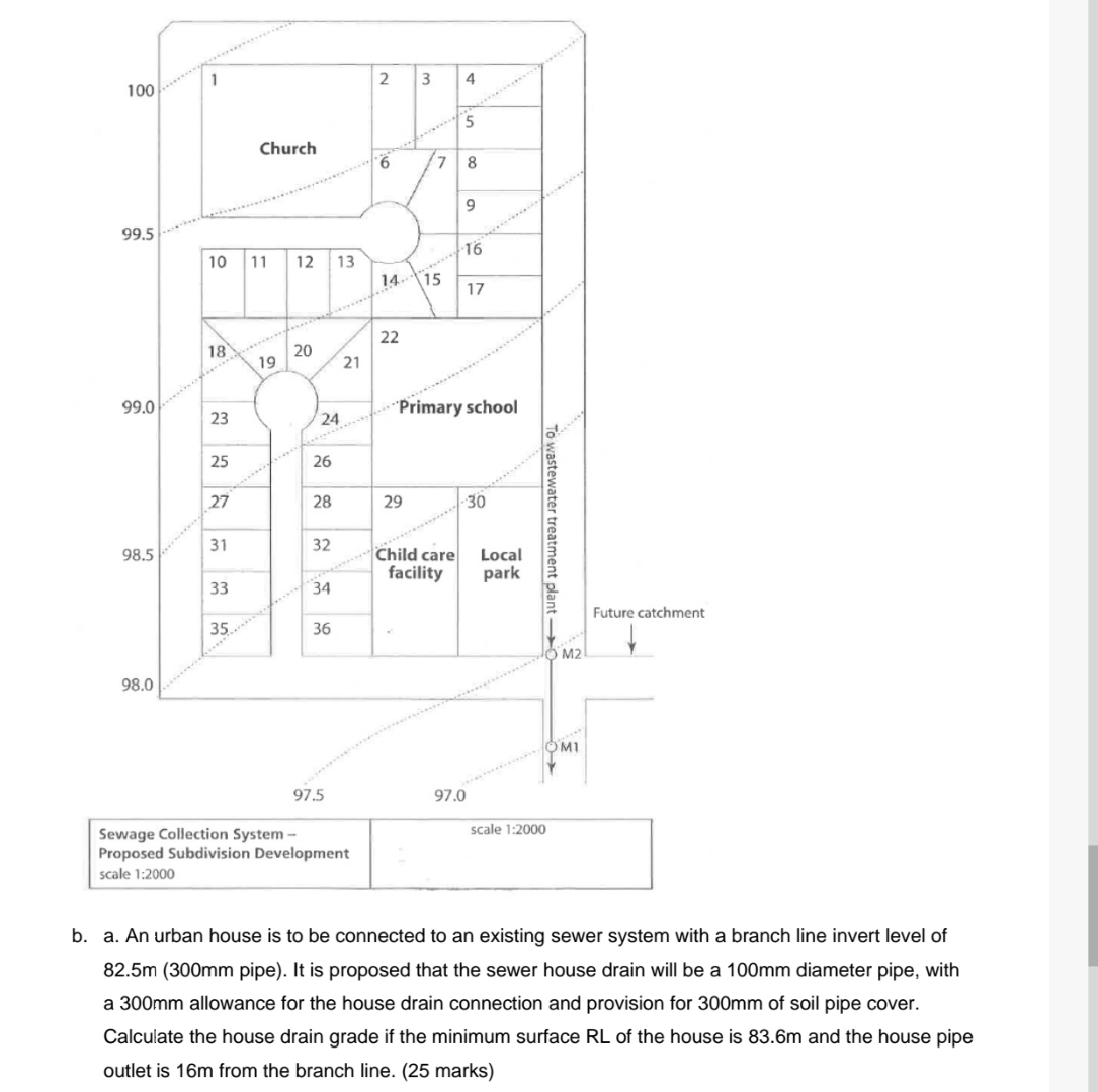
  • 12 / 15