Civil Engineering Questions and Answers March 07, 2020

Expert-verified solutions to help you succeed

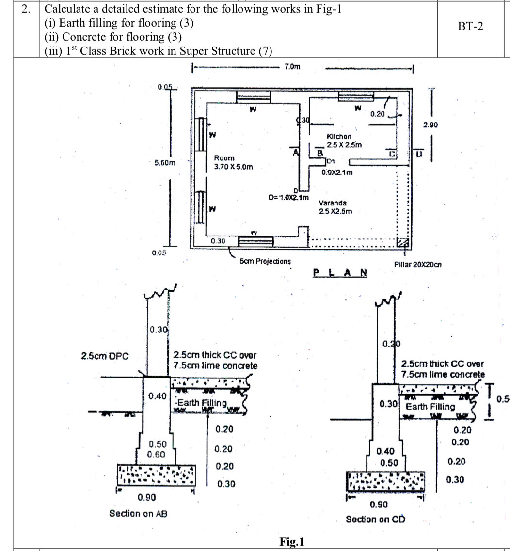
Showing 500 - 600 of 1500
  • 6 / 15