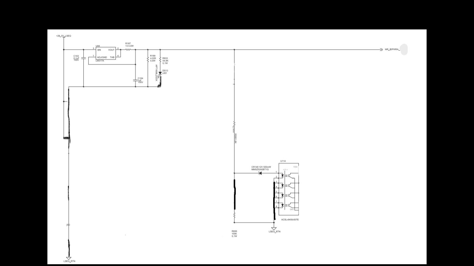
Question: How much power, voltage and current is needed on this circuit for it to work with? You can use simulations and equations for it .
How much power, voltage and current is needed on this circuit for it to work with? You can use simulations and equations for it Thanks.
Step by Step Solution
There are 3 Steps involved in it
1 Expert Approved Answer
Step: 1 Unlock
Question Has Been Solved by an Expert!
Get step-by-step solutions from verified subject matter experts
Step: 2 Unlock
Step: 3 Unlock
