Question: How much power, voltage and current is needed on this circuit for it to work with? You can use simulations and equations for it .
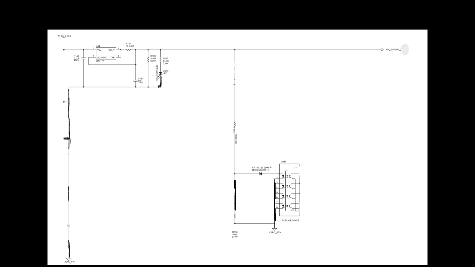
How much power, voltage and current is needed on this circuit for it to work with? You can use simulations and equations for it Thanks. How much power, current and voltage is needed on a circuit that starts with a source of V into an LM A and goes to an k W and k W resistor and goes to a MMSZBTG and this goes to an ACSLTE and the line ends connecting with a ground source.
Step by Step Solution
There are 3 Steps involved in it
1 Expert Approved Answer
Step: 1 Unlock
Question Has Been Solved by an Expert!
Get step-by-step solutions from verified subject matter experts
Step: 2 Unlock
Step: 3 Unlock
