Question: I not only need the steps to solve the problem, but also the solution for better understanding the steps. Because I need to find the
I not only need the steps to solve the problem, but also the solution for better understanding the steps. Because I need to find the numerical results as well, thanks for your help!
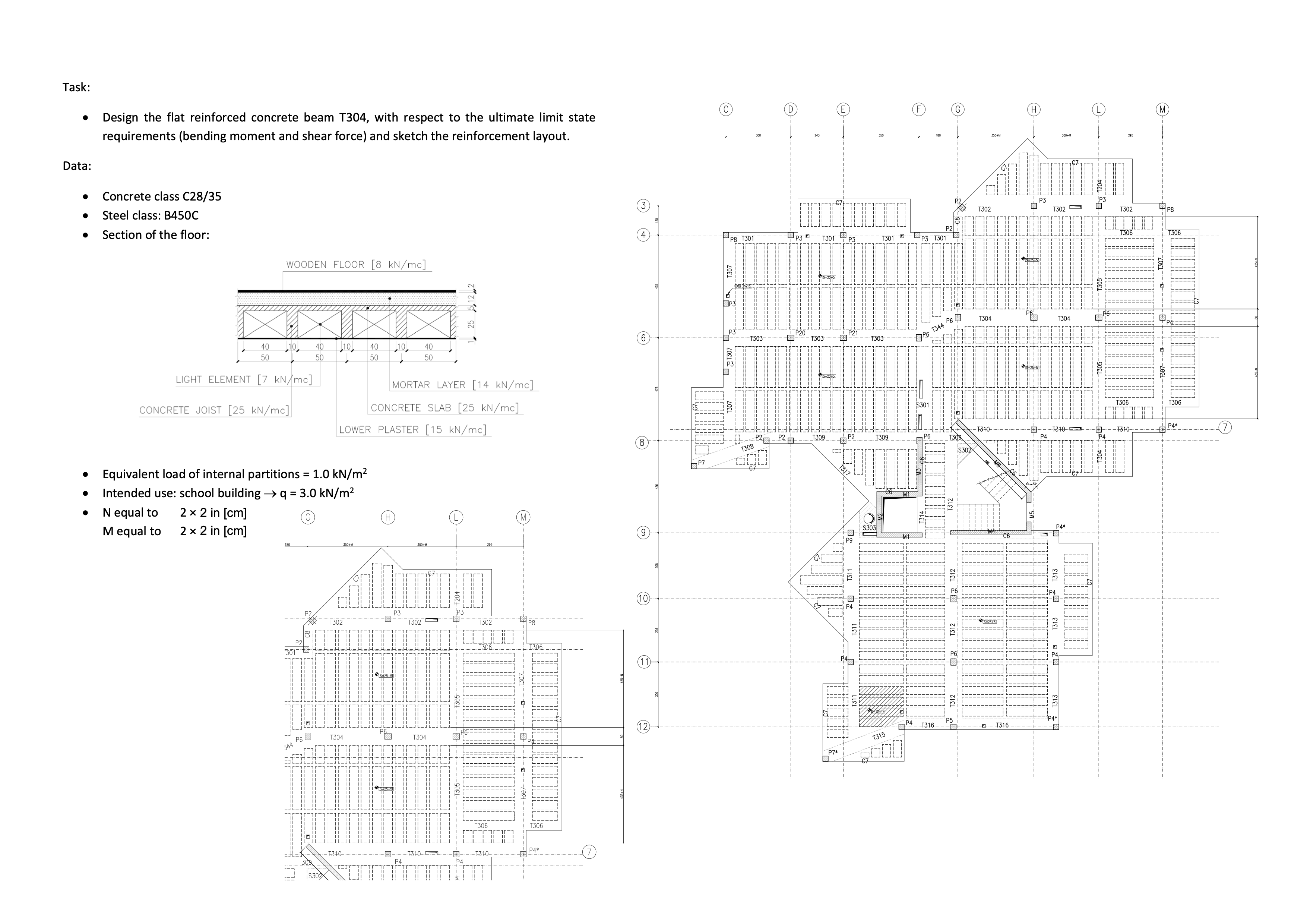
Task: Design the flat reinforced concrete beam T with respect to the ultimate limit state requirements bending moment and shear force and sketch the reinforcement layout.
Data:
Concrete class C
Steel class: BC
Section of
CONC
Equivalent load of internal partitions
Intended use: school building
equal to in cm M equal to in
Step by Step Solution
There are 3 Steps involved in it
1 Expert Approved Answer
Step: 1 Unlock
Question Has Been Solved by an Expert!
Get step-by-step solutions from verified subject matter experts
Step: 2 Unlock
Step: 3 Unlock
