Question: need help with project related to building code 2 0 2 4 BLDC 1 5 0 0 2 0 2 4 BC BUILDING CODE PLAN
need help with project related to building code
BLDC
BC BUILDING CODE
PLAN CHECK PROJECT
REVELSTOKE QUESTIONS
A POLYTECHNIC INSTITUTION
FOUNDATION PLAN QUESTIONS
Q What is the minimum required thickness for the indicated foundation wall location?
Q What is the minimum required thickness for the indicated foundation wall location?
Q What is the minimum required width for the indicated footing location?
Q Size the indicated member using a builtup beam of DFir, Select Structural lumber.
Q Size the indicated column using a builtup wood column.
Q Design the indicated footing under the column supporting the interior end of the beam in question
Q How many rows of strapping or bridging are required for the indicated joist span?
MAIN FLOOR PLAN QUESTIONS
Q Size the indicated joist using SPF # lumber.
Q Size the indicated member. Select the smallest member possible using SPF # lumber without the use of structural sheathing.
Q If the top of the deck elevation is m What is minimum height permitted for the guard serving the deck?
Q If the indicated door does not meet Grade per the Annex to ASTM F "Standard Test Methods for Security of Swing Door Assemblies", is it required to be fitted with a dead bolt?
Q What are the minimum "Performance Grade" and "Water Resistance" required by code for this window?
Q What is the minimum width of the indicated door?
Q Is the indicated door permitted to swing in the direction shown?
Q Is the indicated beam permitted to be designed in Part
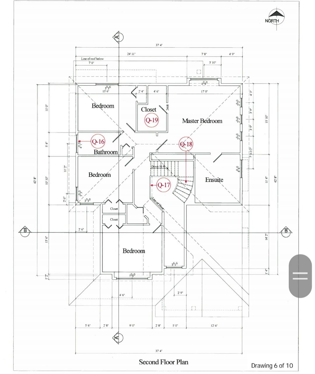
SECOND FLOOR PLAN QUESTIONS
Q Is the indicated lintel permitted to be designed in Part
Q Is the indicated guard required to be designed to not facilitate climbing?
Q What are the run requirements for the indicated portion of the stairs?
Q The attic space over the second floor is required to be accessed by an attic access, what are the minimum dimensions of the hatch?
SECTION AA QUESTIONS
Q Calculate the total effective thermal resistance for the assembly at the location indicated?
Q Is the furred out wall indicated required to be insulated for its full height?
Q What is the minimum insulation value for insulation between the edge of the slab and the foundation wall?
Q What is the minimum nominal thermal insulation required over the top plates at this location?
Q Calculate the total effective thermal resistance for the assembly at the location indicated?
SECTION BB QUESTIONS
Q Is this wall required to have a fire resistance rating?
Q Is compliance with Article required?
Q Is the indicated foundation wall required to be dampproofed?
Q Is this wall required to have a fire resistance rating?
Page of
r
I
Step by Step Solution
There are 3 Steps involved in it
1 Expert Approved Answer
Step: 1 Unlock
Question Has Been Solved by an Expert!
Get step-by-step solutions from verified subject matter experts
Step: 2 Unlock
Step: 3 Unlock
