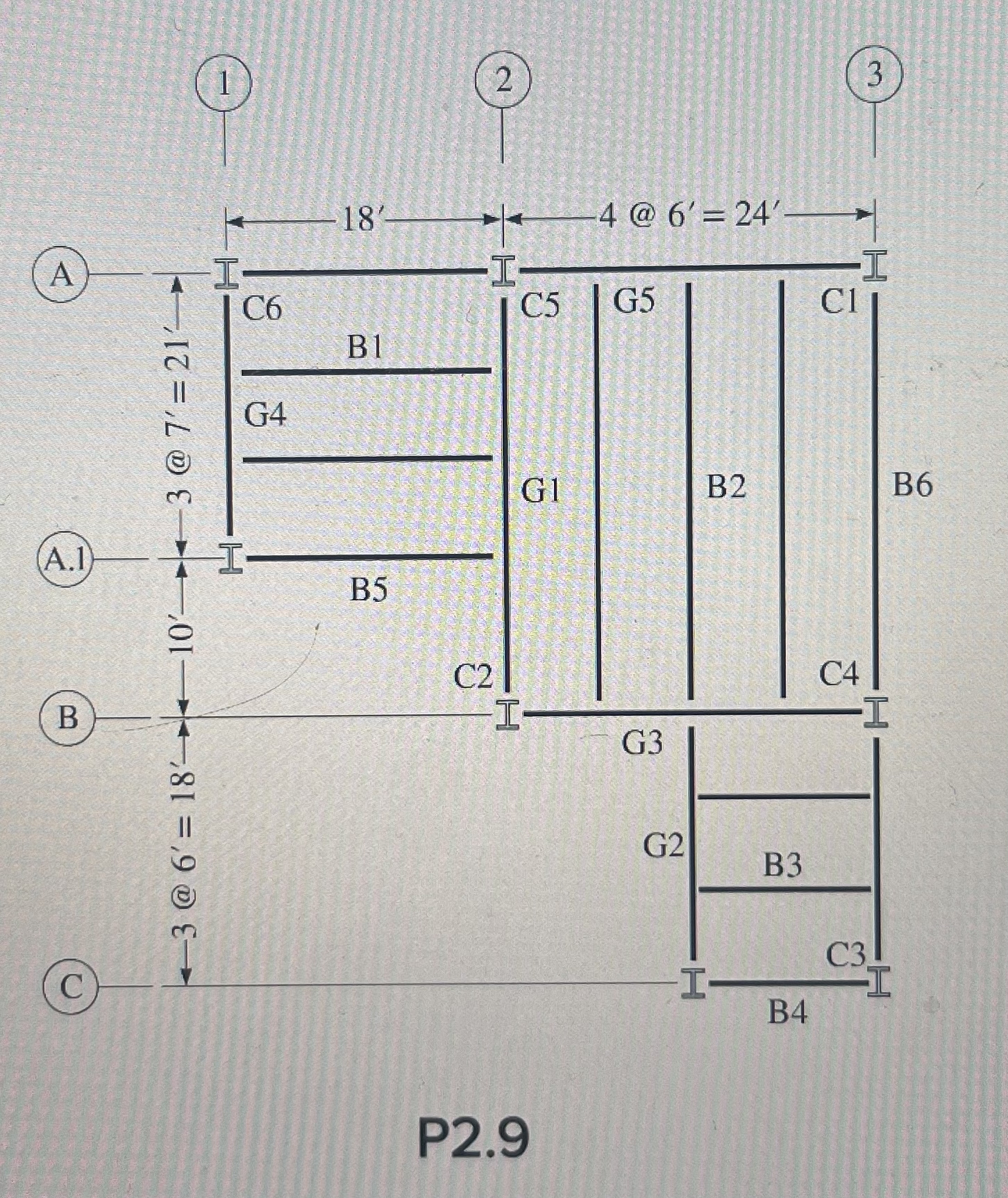
Question: P 2 . 1 3 . The uniformly distributed live load on the floor plan in Figure P 2 . 9 is 1 0 0
The uniformly distributed live load on the floor plan in Figure is Establish the live loading for members a floor beam Bb floor beam Bc girder G and girder G Consider the live load reduction if permitted by the ASCE standard.
P
Step by Step Solution
There are 3 Steps involved in it
1 Expert Approved Answer
Step: 1 Unlock
Question Has Been Solved by an Expert!
Get step-by-step solutions from verified subject matter experts
Step: 2 Unlock
Step: 3 Unlock
