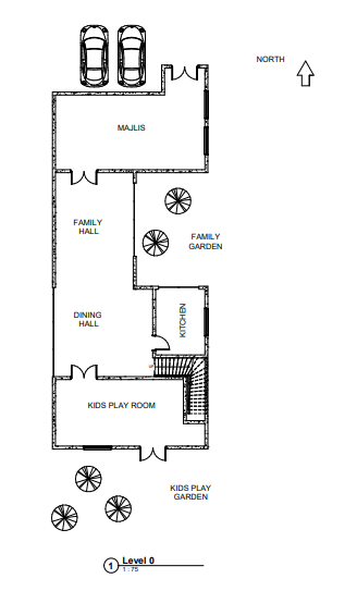
Question: Part A: Active Solar Energy Systems study the architectural plan drawing attached and search for some Active Solar Energy Systems/methods that best suit the house.
Part A: Active Solar Energy Systems
study the architectural plan drawing attached and search for some Active Solar Energy Systems/methods that best suit the house.

ACTIVE SOLAR ENERGY NOT PASSIVE
Step by Step Solution
There are 3 Steps involved in it
Get step-by-step solutions from verified subject matter experts
