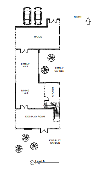
Question: study the architectural plan drawing attached and search for some Passive Solar Energy Systems/methods that best suit the house. THIS IS ARCITECTURAL ENGINEERING
study the architectural plan drawing attached and search for some Passive Solar Energy Systems/methods that best suit the house.

THIS IS ARCITECTURAL ENGINEERING
Step by Step Solution
There are 3 Steps involved in it
Get step-by-step solutions from verified subject matter experts
