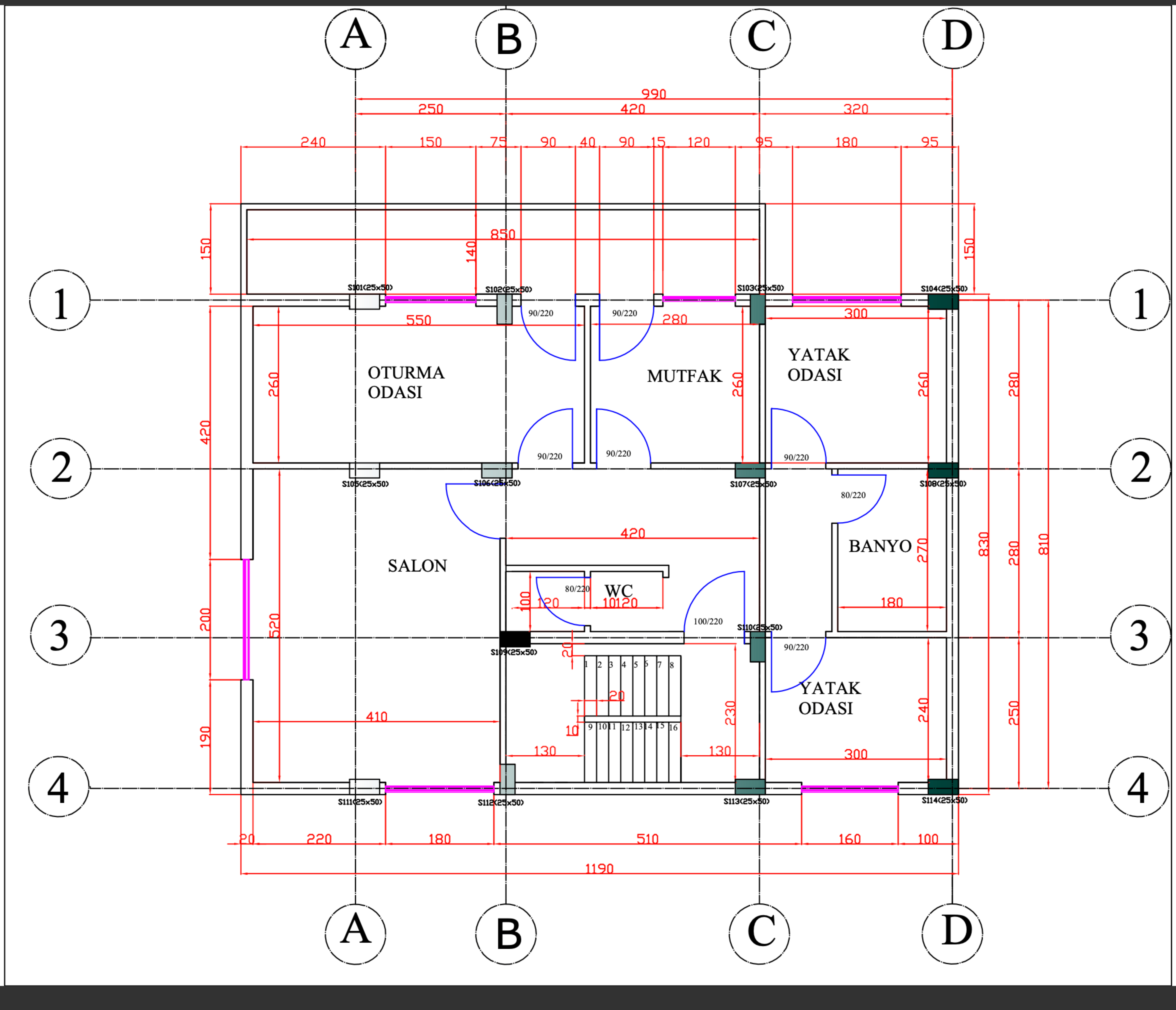
Question: please answer immediately Can you specify the dimensions in more detail so that I can draw it in AutoCAD?
please answer immediately Can you specify the dimensions in more detail so that I can draw it in AutoCAD?
Step by Step Solution
There are 3 Steps involved in it
1 Expert Approved Answer
Step: 1 Unlock
Question Has Been Solved by an Expert!
Get step-by-step solutions from verified subject matter experts
Step: 2 Unlock
Step: 3 Unlock
