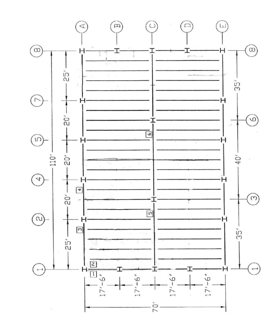
Question: Problem 1 Given: The roof framing plan Service live load = 1 0 0 psf Service dead load = 6 5 psf ( includes weight
Problem
Given:
The roof framing plan
Service live load psf
Service dead load psf includes weight of roofing, deck, beams, ceiling etc.
For the gravity load combinations of DL determine
a design reactions, shear and moment for each beam
b design axial load for each column using beam reactions
c design axial load for each column using the corresponding gross tributary area for comparison with
part b
Note:
Each beam type there are six unique beams in total is numbered in the squares on the plan. Make neat
calculations for each beam with shear and moment diagrams aliened below each other. If you include
more than one beam analysis on a single calculation sheet, please separate them with a horizontal line.
For part c clearly demarcate the column tributary areas on your drawing by outlining, hatching and then
including the dimensions. You need to identify six unique columns and you may label them using circles
in the drawing.
Please note that you are NOT required to design any members for this assignment.
Step by Step Solution
There are 3 Steps involved in it
1 Expert Approved Answer
Step: 1 Unlock
Question Has Been Solved by an Expert!
Get step-by-step solutions from verified subject matter experts
Step: 2 Unlock
Step: 3 Unlock
