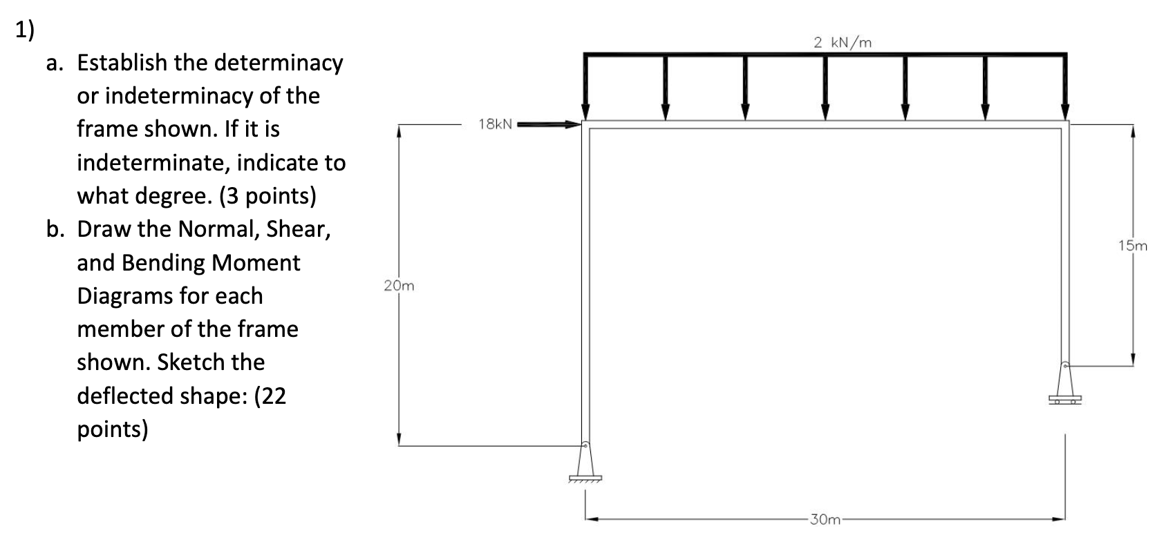
Question: solve 1 ) a . Establish the determinacy or indeterminacy of the frame shown. If it is indeterminate, indicate to what degree. ( 3 points
solve
a Establish the determinacy or
indeterminacy of the frame
shown. If it is indeterminate,
indicate to what degree.
points
b Draw the Normal, Shear, and
Bending Moment Diagrams for
each member of the frame
shown. Sketch the deflected
shape: points
a Establish the determinacy
or indeterminacy of the
frame shown. If it is
indeterminate, indicate to
what degree. points
b Draw the Normal, Shear,
and Bending Moment
Diagrams for each
member of the frame
shown. Sketch the
deflected shape:
points
Based on our study of rigid frames, create a practice problem write out the problem statement
that includes at least one of the topics we covered this week and provide a fully worked solution
for it show your work, not just the answer You will be evaluated on correctness points
creativity points complexity points and clarity points
For the written component of question you may use Generative Al tools as a copyeditor of
your writing only. Directly copying and submitting text generated by Al constitutes a breach of
academic integrity. The ability to communicate your design ideas in clear language is a skill which
you must develop over the course of your career, however improvements in spelling, grammar, and
diction can benefit us all.
Step by Step Solution
There are 3 Steps involved in it
1 Expert Approved Answer
Step: 1 Unlock
Question Has Been Solved by an Expert!
Get step-by-step solutions from verified subject matter experts
Step: 2 Unlock
Step: 3 Unlock
