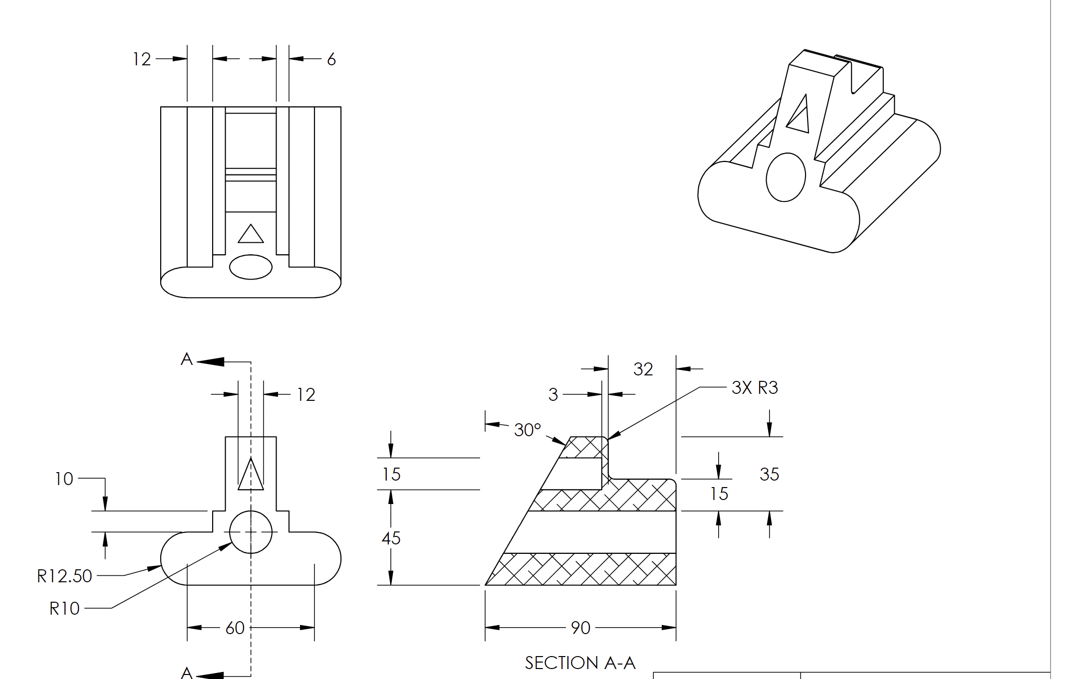
Question: Step - by - Step tutorial on how to draw this in Solidworks. Can you take screenshots of SolidWorks for each of the steps please
StepbyStep tutorial on how to draw this in Solidworks. Can you take screenshots of SolidWorks for each of the steps please
Step by Step Solution
There are 3 Steps involved in it
1 Expert Approved Answer
Step: 1 Unlock
Question Has Been Solved by an Expert!
Get step-by-step solutions from verified subject matter experts
Step: 2 Unlock
Step: 3 Unlock
