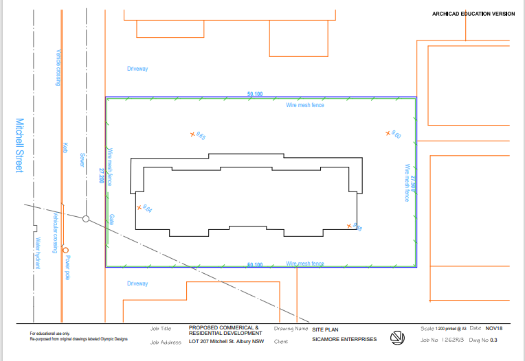
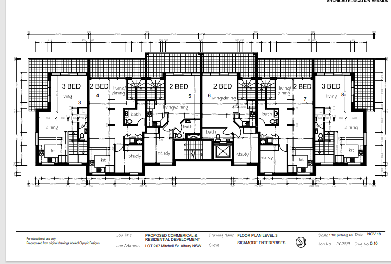
Question: Using the extracts on the following pages from the Mitchell Street concept plans, you are required to draw in and notate a typical reinforcement steel
Using the extracts on the following pages from the Mitchell Street concept plans, you are required to draw in and notate a typical reinforcement steel placement that would be expected for the arrangements shown. The notations must describe the structural principles of the reinforced concrete (RC) floors for the building to resist loads and forces for each situation







\fTYPICAL RAMP CROSS BEAM SECTION 8 SCALE 1:20 $1.10ARCHICAD EDUCATION VERSION Driveway 50.100 Wire mesh fence 2 865 Mitchell Street JEWS Wire mesh fence Wire mesh fence Vehicular crossing Water hydrant end awod O 50 100 Wire mesh fence Driveway Job The PROPOSED COMMERICAL & Drawing Name SITE PLAN Scale 1200 piled @ As Date NOV18 For educational can only. RESIDENTIAL DEVELOPMENT Fla-purposed from original drawings labeled Cipropic Designa Job Address LOT 207 Mitchell St. Albury NSW Chent SICAMORE ENTERPRISES Job No 1262R/3 Dig No 0.3\fARCHICAD EDUCATION VERSION 230 220 220 220 230 220 -3500 100120 2370 -3100- gbge 3970 XXIXIX XXIXIx courtyard 5410- courtyard courtyard 2 BED 2 2 BED living/dining 2000 L 3530 living/dining office store #3590 room retail 5 10 at 1 230- cit bed bath ID = bed 2 idy xbath X bed 2 bath bed I 890- .3240 -3450 -1900- -2760 -8500 courtyard 110 900 2140- 38500 Job Title PROPOSED COMMERICAL & For educational can only. Drawing Name FLOOR PLAN LEVEL 1 Scale 1:100 printed @ As Date NOV 18 RESIDENTIAL DEVELOPMENT Fla-purposed whom original drawing labeled Olympic Designa Job Address LOT 207 Mitchell St. Albury NSW Chent SICAMORE ENTERPRISES Job No 1262R/3 Dwg No 0.83 BED 2 BEDI Inng 2 BED 2 BED living 2 BED 3 BED dining living 4 B 3 ving dining FID bath bath C 10 dining bath dining bath kit Study study study study -400- Job Title PROPOSED COMMERICAL & Drawing Name FLOOR PLAN LEVEL 3 Scale 1:100 piled 2 43 Date NOV 18 For whenional can only. RESIDENTIAL DEVELOPMENT Fla-purposed whom original donwings labeled Olympic Designa Job Address LOT 207 Mitchell St. Albury NSW Chent SICAMORE ENTERPRISES Job No 1262R/3 Dug No 0.10NW W LEVEL 3 II LEVEL 2 II 20co- 200- -3000-- 30op--300- LEVEL 1 CAR MARS BASEMENT CAR PARK BASEMENT 2 4 04 30 Job Tide For educational won only. PROPOSED COMMERICAL & Drawing Name NORTH ELEVATION Scale 1200 printed @ As Date NOV 18 Flu-purposed hom original drawings labeled Cipropic Design RESIDENTIAL DEVELOPMENT Job Address LOT 207 Mitchell St. Albury NSW Chent SICAMORE ENTERPRISES Job No 1262R/3 Dwg No 0.13 ARCHICAD EDUCATION VERSION
Step by Step Solution
There are 3 Steps involved in it
Get step-by-step solutions from verified subject matter experts
