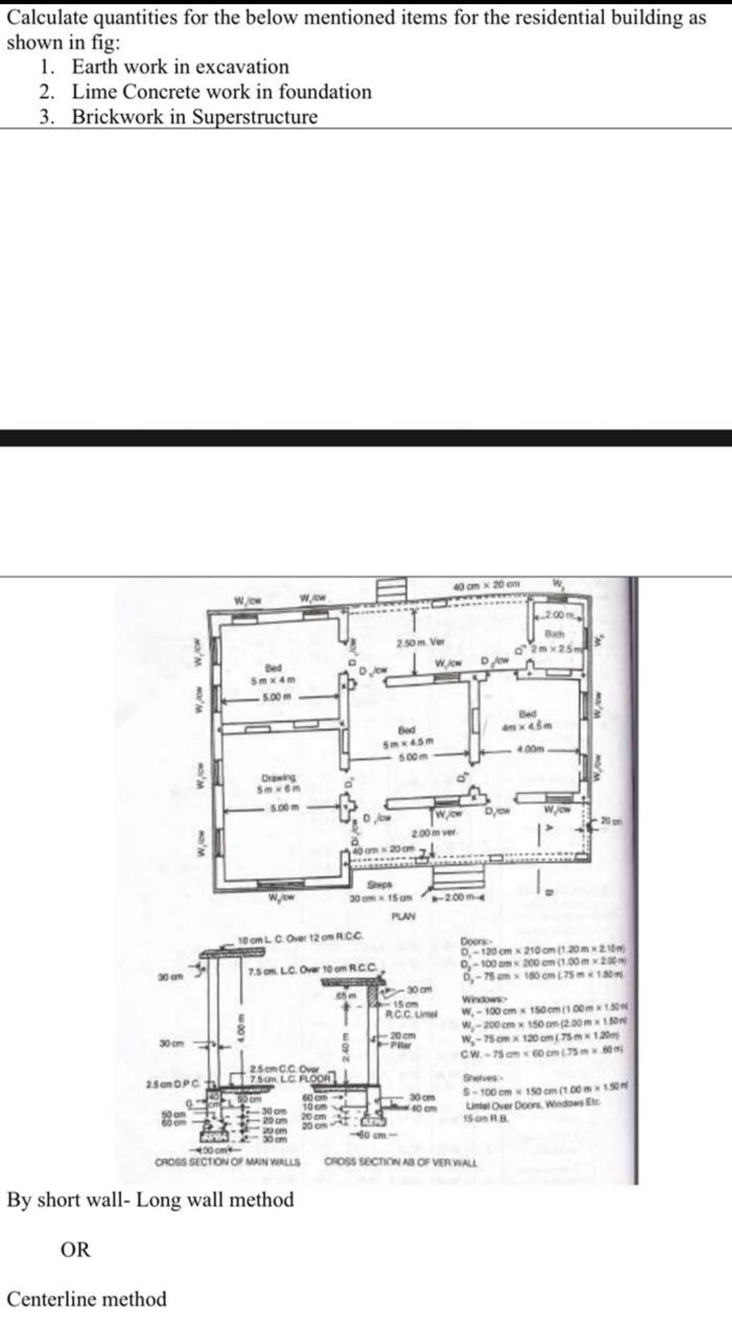
Question: 2 . Calculate the following items from the plan and section given in the figure below using Individual Wall method: ( i ) Earthwork Excavation
Calculate the following items from the plan and section given in the figure below using Individual Wall method:
i Earthwork Excavation for foundation.
ii Cement Concrete in foundation ::
iii Reinforced Cement Concrete :: in lintels, sunshades, and roof slab
ivDamp proof course, cmthick of cement concrete :: with coats
PartB
Step by Step Solution
There are 3 Steps involved in it
1 Expert Approved Answer
Step: 1 Unlock
Question Has Been Solved by an Expert!
Get step-by-step solutions from verified subject matter experts
Step: 2 Unlock
Step: 3 Unlock
