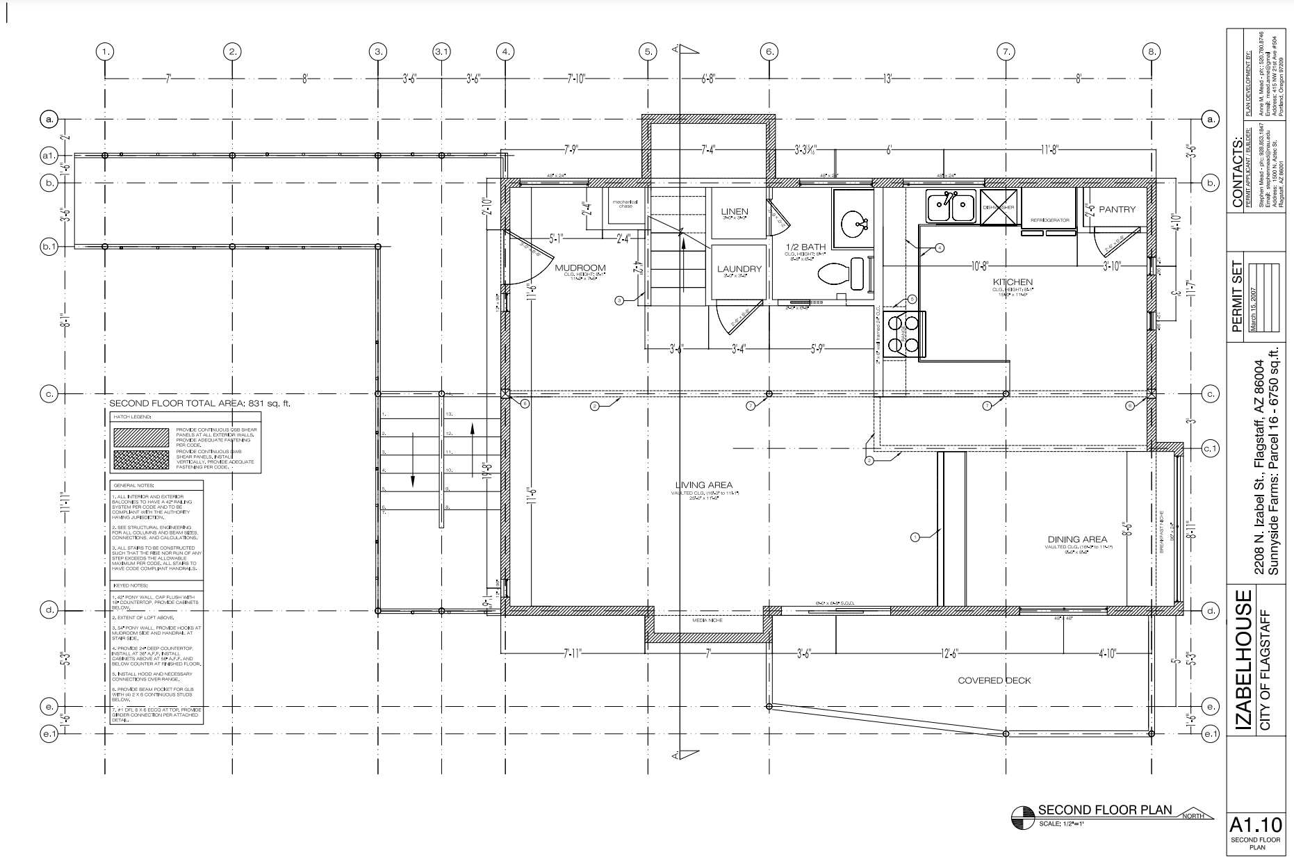
Question: Using the attached floor plan recreate the load calculation table shown in Figure 1 7 - 1 0 and fully populate to determine the heating
Using the attached floor plan recreate the load calculation table shown in Figure and fully populate to determine the heating and cooling load calculations. You can follow steps that begin on page tableCOOLING HEAT TRANSFER FACTORSType of Construction,Cooling Factor WallsWood Frame with Sheeting, Siding, and Veneer or Other FinishNo insulation, e gypsum board,R cavity insulation gypsum board,R cavity insulation bead board RR cavity insulation gypsum board,R cavity insulation extruded poly,Above grade RBelow grade No insulation,Below grade RBelow grade RCeilingsNo insulation,of I insulation Rn insulation R insulation RRRFloorsOver Unconditioned SpaceOver basement or enclosed crawl space not ventedOver vented space or garage,Over vented space or garage R insulation,Over vented space or garage R insulation,Basement Concrete Slab Floor UnheatedNo edge insulation,I edge insulation R edge insulation RBasement Concrete Slab Floor Duct in SlabNo edge insulation,I edge insulation R edge insulation R
NOTES:
Location: Flagstaff, Arizona
Windows: Casement with insulating glass
Doors: Door to deck is double glass, entry door is weatherstripped and with storm door
Walls: Block furred with R insulation
Ceiling: Under unconditioned space R insulation
Floor: Over unconditioned space R insulation
tableOUTDOOR DESIGN TEMPERATUREState and City,Lat. tabletableWinterDBSummerDBtabletableDailyRangeWBALABAMAAlexander City,AuburnBirminghamHuntsvilleMobileMontgomeryTalladegaTuscaloosaALASKAAnchorageBarrowFairbanksJuneauKodiakNomeARIZONAFlagstaftPhoenixTucsonYuma
Step by Step Solution
There are 3 Steps involved in it
1 Expert Approved Answer
Step: 1 Unlock
Question Has Been Solved by an Expert!
Get step-by-step solutions from verified subject matter experts
Step: 2 Unlock
Step: 3 Unlock
